L'Immobilière Wolfs a le plaisir de vous présenter cette charmante maison d'habitation avec jardin, à proximité immédiate de toutes commodités ! Profitez d'un bien directement habitable en bon état général, d'un bel espace de vie ouvert et d'un agréable jardin. Bénéficiez enfin d'excellentes prestations énergétiques en classe C !
Sous-sol : cave de rangement avec espace chaufferie.
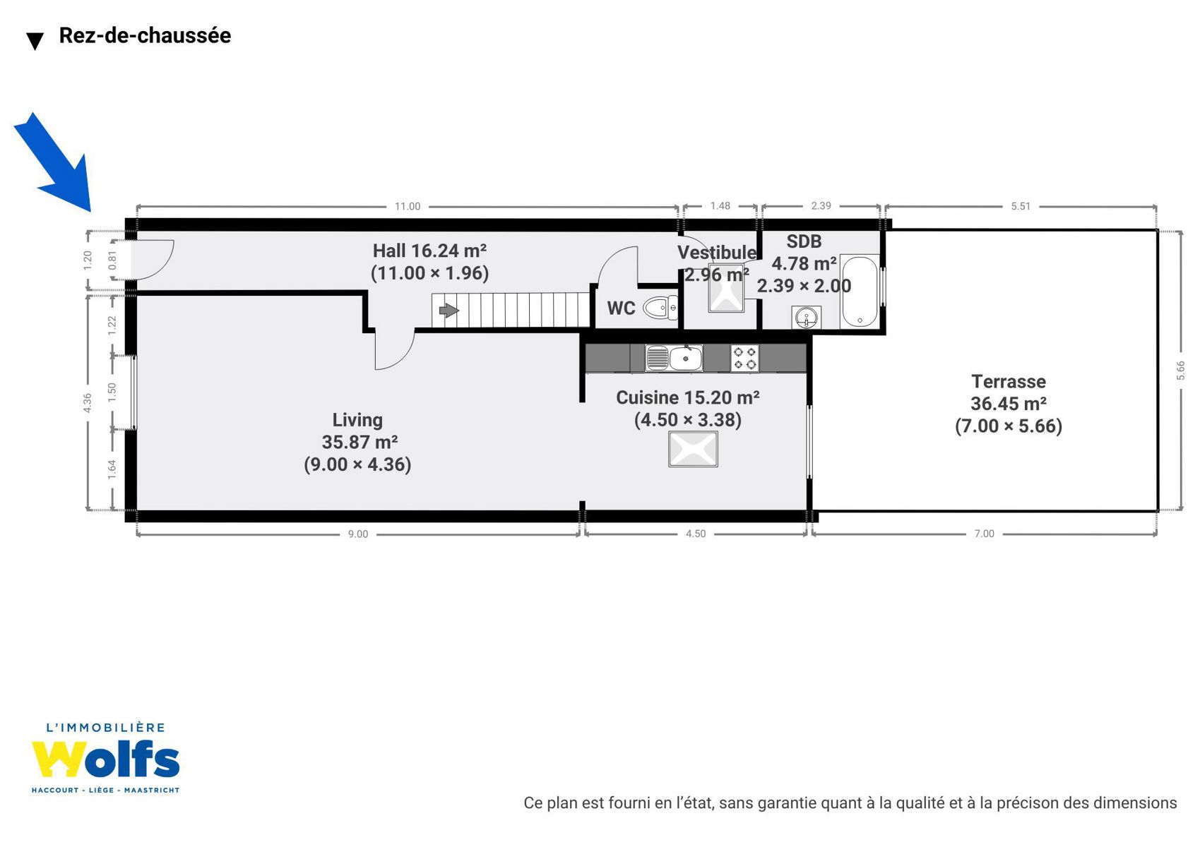
Rez-de-chaussée : hall d'entrée, toilette indépendante, living de +/- 36 m² (salon, salle à manger) avec cuisine équipée ouverte, salle de bains (baignoire, lavabo), jardin avec terrasse et abri en bois.
1er étage : hall de nuit, trois chambres de +/- 10, 12 et 16 m² dont deux en enfilade.
Grenier : grenier de rangement.
Divers : superficie totale : +/- 178 m², superficie habitable : +/- 120 m², double vitrage en bois et PVC, chauffage central au mazout, toiture principale refaite il y a +/- 8 ans, toiture plate de 2022.
Informations énergétiques : PEB No. : 20211117013780, PEB : C, E spec : 247 kWh/m².an, E totale : 32 438 kWh/an.
A DÉCOUVRIR !

