Bungalow à vendre
Voie des Fosses 39 | Feneur - 4607
280.000€
L'Immobilière Wolfs a le plaisir de vous présenter ce charmant bungalow avec garage et jardin, idéalement situé à Feneur. Ce bien entièrement rénové met à votre disposition de confortables espaces de vie, un agréable espace extérieur avec vue sur les champs ainsi qu'un accès aisé aux différentes commodités. Vous profiterez également d'un spacieux espace garage / atelier aux nombreuses possibilités d'aménagement.
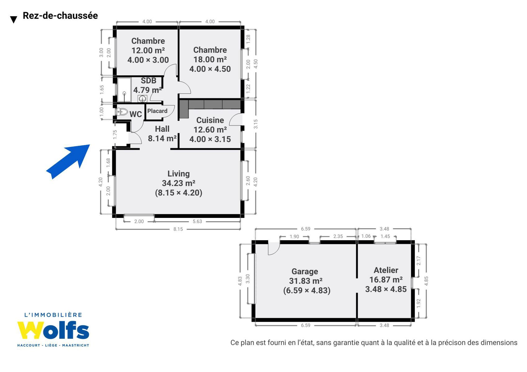
Rez-de-chaussée : hall d'entrée, toilette indépendante, living (salon, salle à manger) avec poêle à pellets, cuisine semi-équipée, hall de nuit, salle de douches (lavabo, douche), deux chambres, garage avec espace buanderie, jardin, terrasse, parkings extérieurs.
Grenier : de rangement.
Divers : superficie totale : 708 m², superficie habitable : +/- 100 m², R.C. : 805 €, double vitrage en PVC avec volets électriques, électricité en conformité, pompes à chaleur, panneaux photovoltaiques, caméra de surveillance.
Informations énergétiques : PEB No. : 20250729004564, PEB : D, E spec : 258 kWh/m².an, E totale : 25958 kWh/an.
COUP DE COEUR ASSURE !
-
Chambres
2 ch(s).
-
Surfaces habitables
Total : 100 m²
surface bâtie - 100m²
chambre 1 - 12m²
chambre 2 - 18m²
Salle de séjour - 34m²
Cuisine - 13m²
-
Superficie totale
708 m²
-
Référence
5735
-
Energie

PEB E-SPEC (kwh/m²/an) - 258
E total - 25958
PEB code unique - 20250729004564
