Huis te koop
Rue Sur les Vignes 129-131 | Oupeye - 4680
195.000€
Gelegen in een rustige, residentiële wijk van Oupeye, biedt Makelaardij Wolfs dit huis met tuin en grote bosrijke omgeving aan. Profiteer van de ruime kamers en de centrale ligging, dicht bij alle voorzieningen !
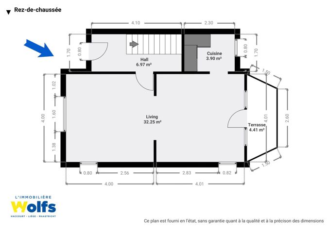
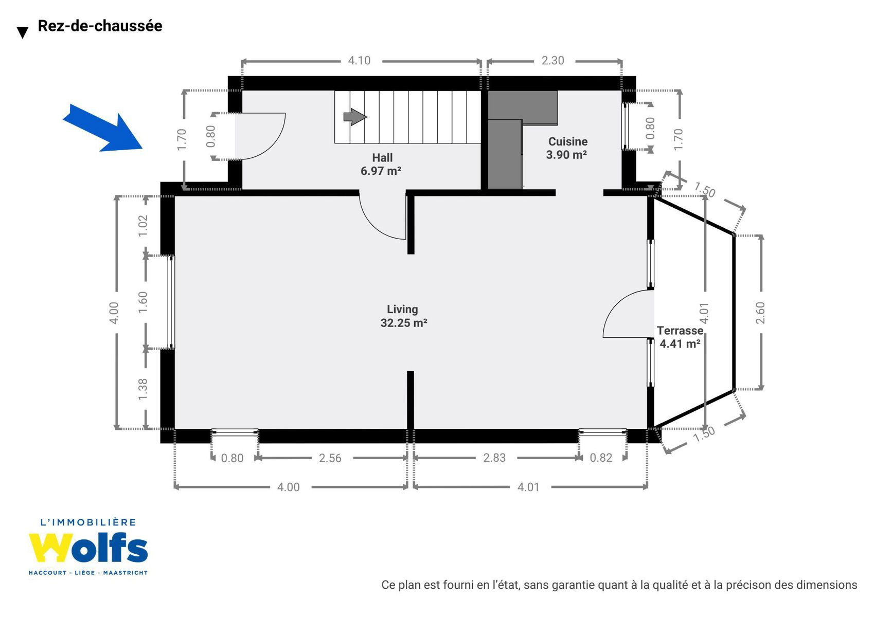
Begane grond : hal, keuken, lichte woonkamer van 32 m² met balkon en prachtig uitzicht over de vallei, zij- en achtertuin, grote bosrijke omgeving aan de achterzijde.
1e verdieping : nachthal, badkamer (wastafel en ligbad), drie slaapkamers van ca. 7, 12 en 16 m² (inclusief een kleine babykamer of studeerkamer).
Overig : houten dubbele beglazing, centrale verwarming op olie, woonoppervlakte: +/- 90 m², totale oppervlakte: 1.837 m², K.I.: 521 €.
Energieprestaties : EPC-nr.: 20250120007172, EPC : G, Energiescore : 733 kWh/m².an, Energieverbruik : 66.556 kWh/jaar.
EEN ONTDEKKING !
Meer informatie op www.wolfs.be !
-
Kamers
3 k(s).
-
Surfaces habitables
Totaal : 100 m²
slaapkamer 1 - 16.01m²
slaapkamer 2 - 11.51m²
slaapkamer 3 - 6.66m²
woonkamer - 32.25m²
keuken - 3.9m²
-
Superficie totale
1837 m²
-
Referentie
5567
-
Energie
