Huis te koop
Rue de Hermée 39 | Herstal - 4040
285.000€
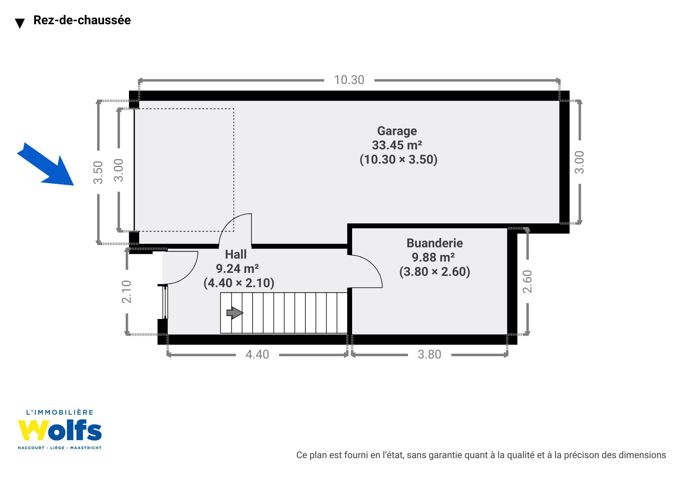
Begane grond : inkomhal, wasruimte en garage voor twee auto's in de lengte (10,30 m lang), zijdelingse doorgang voor voetgangers.
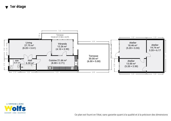
1e verdieping : hal, woonkamer van +/- 28 m², grote ingerichte keuken van +/- 22 m², veranda van +/- 12 m², badkamer (wastafel, bad en toilet), aangenaam terras, tuin, bijgebouw van +/- 51 m² met pizzaoven.
2e verdieping : nachthal, drie slaapkamers van +/- 12, 13 en 14 m², doucheruimte (wastafel, douche, bidet en toilet).
Diversen : bewoonbare oppervlakte: +/- 135 m² + ongeveer 51 m² bijgebouw, totale oppervlakte: 417 m², K.I.: 1.147 €, dubbele beglazing in PVC met gedeeltelijk luiken, centrale verwarming op stadsgas, airconditioning in de woonkamer.
Energieprestaties : EPC-nr.: 20250626010871, EPC: F, Energiescore : 453 kWh/m²/jaar, Energieverbruik : 65446 kWh/jaar.
MOOIE VOLUMES !
GROENE OMGEVING !
Meer informatie op www.wolfs.be !
-
Kamers
3 k(s).
-
Surfaces habitables
Totaal : 135 m²
slaapkamer 1 - 14.41m²
slaapkamer 2 - 12.66m²
slaapkamer 3 - 11.37m²
terras 1 - 41m²
woonkamer - 27.75m²
keuken - 21.66m²
-
Superficie totale
417 m²
-
Referentie
5672
-
Energie
