Huis te koop
Rue de la Chapelle 32 | Fexhe-le-Haut-Clocher - 4347
219.000€
Kelder : kelders.
Begane grond : inkomhal, ruime woonkamer van +/- 36 m² met pelletkachel, ingerichte keuken, apart toilet, kantoor, tuin, garage van +/- 26 m².
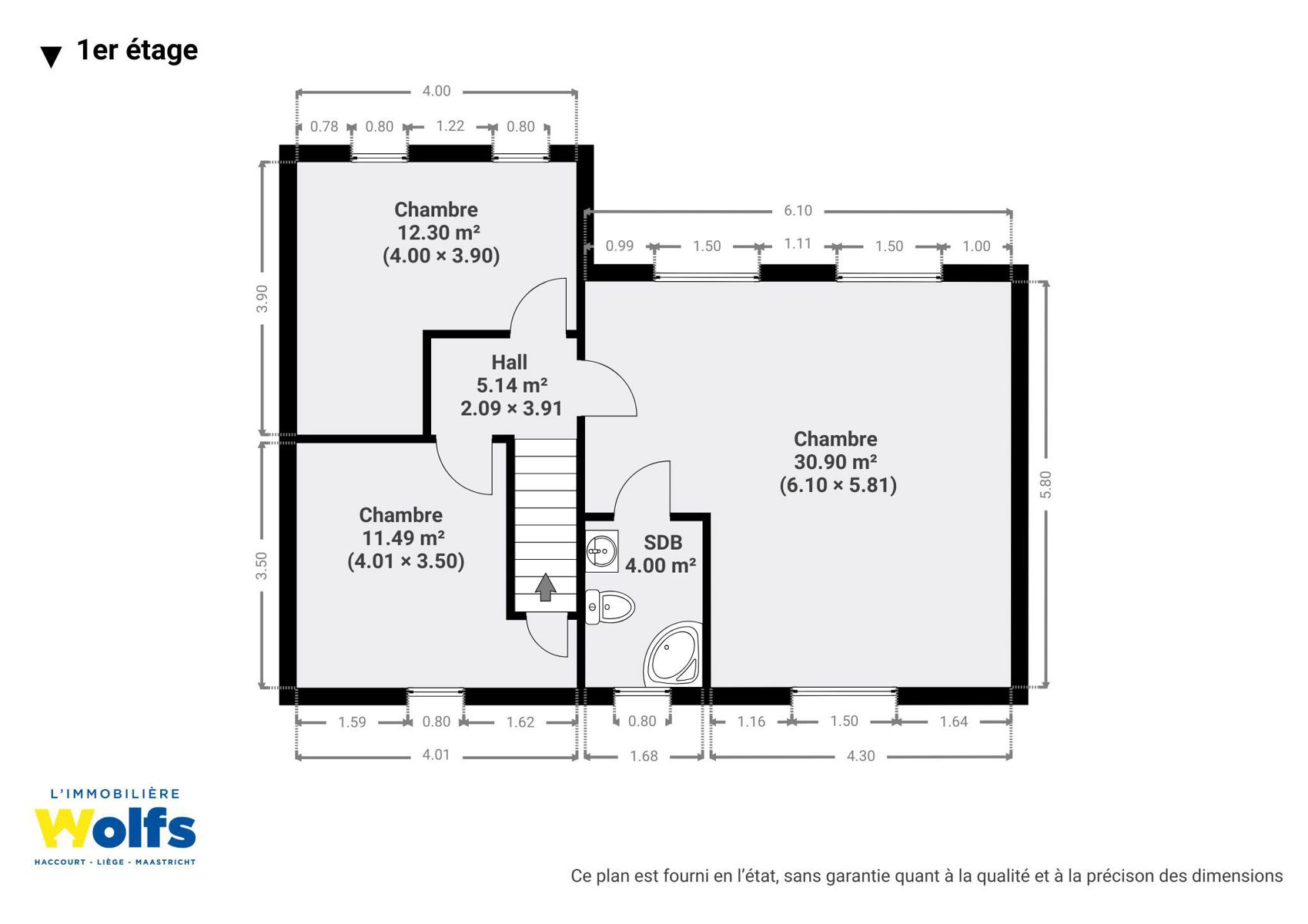
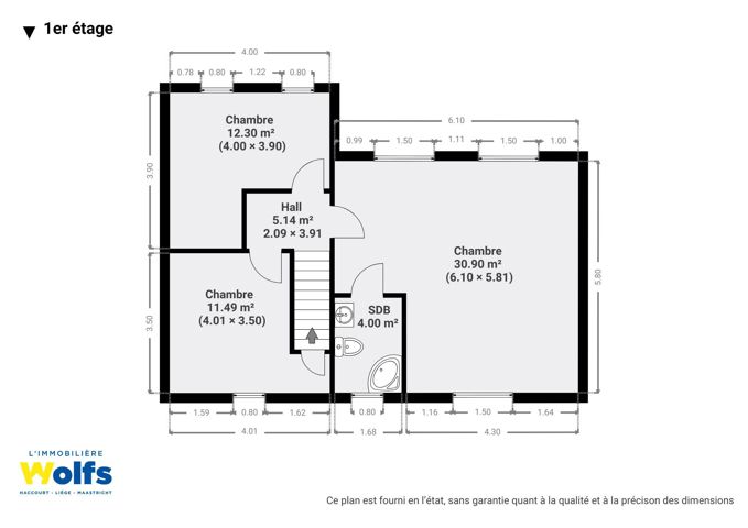
1e verdieping : nachthal, drie slaapkamers van +/- 12, 13 en 31 m², waarvan één met badkamer (wastafel, bad en toilet).
2e verdieping : zolder van +/- 30 m².
Diversen : totale oppervlakte: 815 m², bewoonbare oppervlakte: +/- 165 m², dubbele beglazing in PVC, centrale verwarming op stookolie, K.I.: 503 €.
Energieprestaties : EPC-nr.: 20251107017071, EPC: E, Energiescore : 397 kWh/m²/jaar, Energieverbruik : 70 992 kWh/jaar.
TE ONTDEKKEN !
-
Kamers
3 k(s).
-
Surfaces habitables
Totaal : 165 m²
slaapkamer 1 - 11.49m²
slaapkamer 2 - 12.3m²
slaapkamer 3 - 30.9m²
woonkamer - 24.83m²
eetkamer - 12m²
keuken - 16m²
bureau - 14.12m²
-
Superficie totale
815 m²
-
Referentie
5796
-
Energie
