Huis te koop
Rue du Commerce 17 | Bassenge - 4690
230.000€
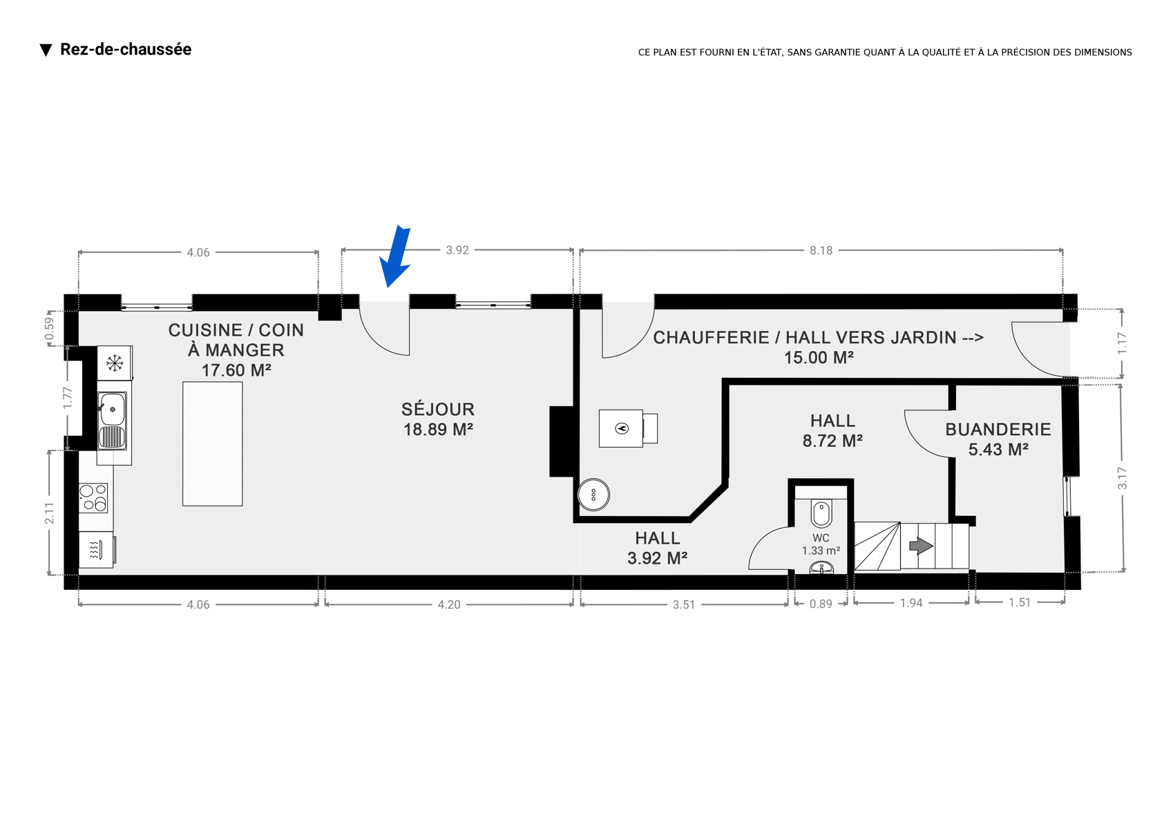
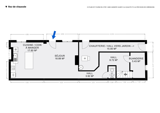
Begane grond : +/- 36 m² woonkamer met open ingerichte keuken, hal, apart toilet, bijkeuken, stookruimte met toegang tot de tuin, parkeerplaats.
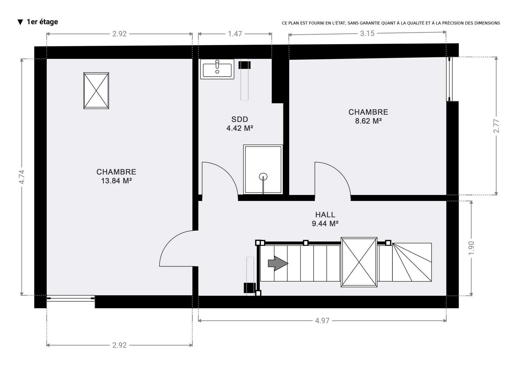
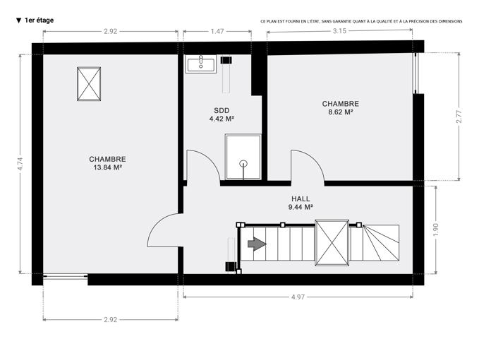
1ste verdieping : nachthal, twee slaapkamers van ongeveer 9 en 14 m², doucheruimte (douche, wastafel).
Diversen : PVC dubbele beglazing, centrale verwarming op olie (ketel aanwezig, aansluitingen en radiatoren te voorzien), woonoppervlakte: +/- 92 m², totale oppervlakte: te bepalen na splitsing.
Energieprestaties : EPC-nr: 20240531018183, EPC : G, Energiescore : 566 kWh/m².an, Energieverbruik : 62570 kWh/jaar.
EEN ONTDEKKING !
Meer informatie op www.wolfs.be !
-
Kamers
2 k(s).
-
Surfaces habitables
Totaal : 111 m²
slaapkamer 1 - 9m²
slaapkamer 2 - 14m²
woonkamer - 36m²
-
Referentie
5818
-
Energie
