Huis te koop
Place Communale / Rue Sudrain 6 | Wonck - 4690
175.000€
In het hart van een charmante vierkantshoeve presenteert Makelaardij Wolfs dit authentieke, met zorg onderhouden woonhuis met prachtig aangelegde tuin en privéparkeerplaats.
Begane grond : inkomhal, +/- 28 m² woonkamer, ingerichte keuken, prachtige siertuin, parkeerplaats.
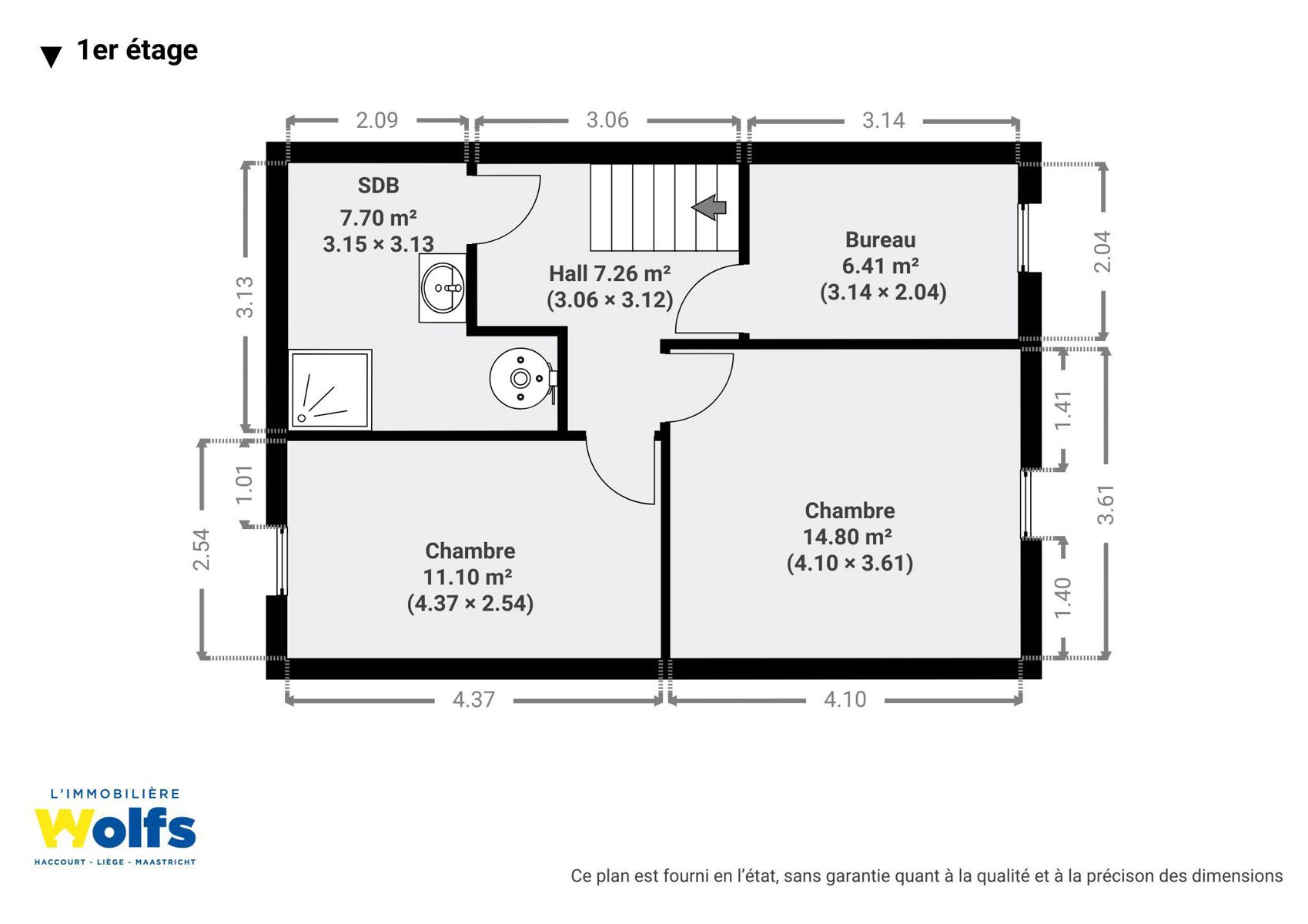
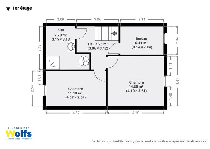
Eerste verdieping : nachthal, twee slaapkamers van ongeveer 10 en 15 m², doucheruimte (wastafel, douche en toilet), kleine studeer- of kleedkamer, te creëren toegang tot de inrichtbare zolder.
Zolder : in te richten ruimte van ongeveer 47 m² voor een grote extra slaapkamer.
Diversen : verwarming met pelletkachel, dubbele beglazing in hout en driedubbele beglazing in PVC, totale oppervlakte: 167 m², woonoppervlak: +/- 92 m², elektriciteit conform tot 2049.
Energieprestaties : EPC-nr.: 20220722012493, EPC : F, Energiescore : 431 kWh/m².an, Energieverbruik : 44815 kWh/jaar.
EEN MUST SEE !
GEGARANDEERDE LIEFDE OP HET EERSTE GEZICHT !
Meer informatie op www.wolfs.be !
-
Kamers
3 k(s).
-
Surfaces habitables
Totaal : 92 m²
slaapkamer 1 - 15m²
slaapkamer 2 - 10m²
woonkamer - 13.8m²
eetkamer - 13.8m²
keuken - 5.4m²
bureau - 6.4m²
-
Superficie totale
167 m²
-
Referentie
4882
-
Energie
