298.000€

Makelaardij Wolfs presenteert u deze charmante villa met garage en tuin in de mooie gemeente Juprelle. De woning is in goede staat en u zult genieten van de aangename tuin met bomen en de comfortabele leefruimtes !

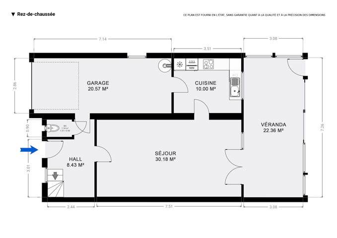
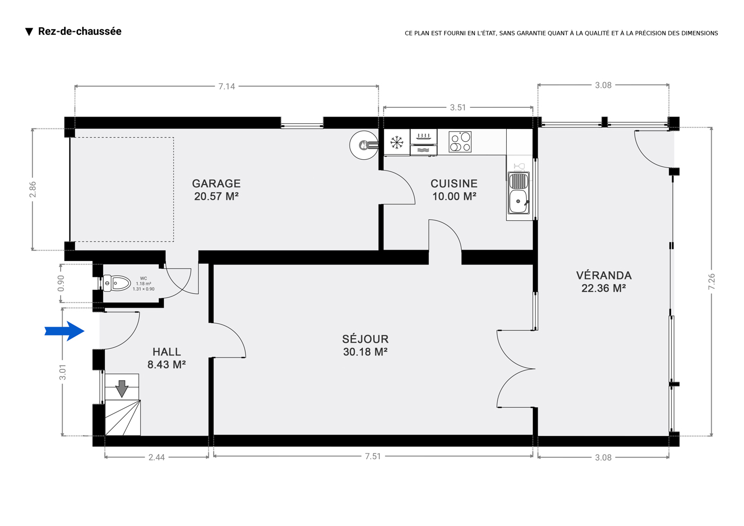
Gelijkvloers : inkomhal, apart toilet, woonkamer van +/- 30 m² (salon, eetkamer), ingerichte keuken van +/- 10 m², veranda van +/- 23 m².

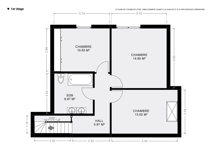
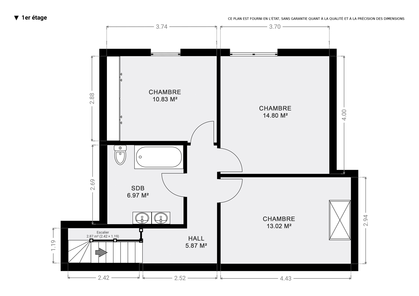
1e verdieping : nachthal, drie slaapkamers van +/- 11, 13 en 15 m², badkamer (bad, wastafel, toilet).

Diversen : totale oppervlakte: 404 m², bewoonbare oppervlakte: +/- 130 m², K.I.: 721 €, dubbele beglazing in hout, elektrische centrale verwarming via accumulatoren.

Energieprestaties : EPC-nr.: 20240115006402, EPC: G, Energiescore : 808 kWh/m²/jaar, Energieverbruik : 139 285 kWh/jaar.

TE ONTDEKKEN !

Meer informatie op www.wolfs.be !
  • Kamers

    3 k(s).

  • Surfaces habitables

    Totaal : 130 m²

    slaapkamer 1 - 11m²

    slaapkamer 2 - 13m²

    slaapkamer 3 - 15m²

    woonkamer - 30m²

    keuken - 10m²

  • Superficie totale

    404 m²

  • Referentie

    5282

  • Energie

    PEB

Beschikbare documenten

Kenmerken

Naam, Categorie & Ligging

Verdiepingen - aantal1

Gebouw

Aantal garages1

Parking buitenJa

Aantal parking binnen1

Aantal parking buiten2

Basisuitrusting

KeukenJa

Type verwarmingIndividueel

Dubbele beglazingJa

Type verwarmingElektrische accumulatoren

Keuken - typeVS geïnstalleerd

BadkamerDouche

In cijfers

Toiletten - aantal2

Aantal douchekamers1

Slaapkamer 111 m²

Slaapkamer 213 m²

Slaapkamer 315 m²

Woonkamer30 m²

Keuken10 m²

Diverse

VerandaJa

Aansluitingen

ElektriciteitJa

KabeltelevisieJa

TelefoonbekabelingJa

WaterJa

Technische uitrusting

Type schrijnwerkerijHout

Omgeving

Type buurtResidentiële wijk

Type buurt 2Woonkern

Woonomgeving

Winkels in de buurt Ja

Scholen in de buurt Ja

Openbaar vervoer in de buurt Ja

Sportcentrum in de buurt Ja

Autostrade in de buurt Ja

Energie

EPC-klassePEB

EPC (Kwh/m²/j)808

E totaal139285

EPC unieke code20240115006402

Bent u geïnteresseerd in dit pand?
Neem contact met ons op.

Voor meer informatie, om een afspraak te maken of voor andere inlichtingen over dit pand kunt u eenvoudig contact met ons opnemen via onderstaand contactformulier.

U vindt uw keuze
nietr tussen de panden
die we aanbieden?

Geen paniek! Dankzij ons netwerk en onze knowhow kunt u elke dag nieuwe panden ontdekken.

Geef ons uw zoekcriteria door en u wordt automatisch op de hoogte gebracht wanneer er een nieuw pand wordt gepubliceerd dat aan uw vraag beantwoordt!


Fatal error: Uncaught wfWAFStorageFileException: Unable to save temporary file for atomic writing. in /home/clients/9f184db0d4099b7b46c773570a3a9b28/sites/wolfs.be/wp-content/plugins/wordfence/vendor/wordfence/wf-waf/src/lib/storage/file.php:34 Stack trace: #0 /home/clients/9f184db0d4099b7b46c773570a3a9b28/sites/wolfs.be/wp-content/plugins/wordfence/vendor/wordfence/wf-waf/src/lib/storage/file.php(658): wfWAFStorageFile::atomicFilePutContents('/home/clients/9...', '<?php exit('Acc...') #1 [internal function]: wfWAFStorageFile->saveConfig('livewaf') #2 {main} thrown in /home/clients/9f184db0d4099b7b46c773570a3a9b28/sites/wolfs.be/wp-content/plugins/wordfence/vendor/wordfence/wf-waf/src/lib/storage/file.php on line 34