Bungalow te koop
Rue Fosses Berger 23 | Olne - 4877
375.000€
Kelder : opslagkelders, garage.
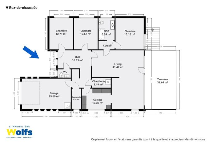
Begane grond : hal, apart toilet, woonkamer (salon, eetkamer) met toegang tot het terras op het zuiden, ingerichte keuken, drie slaapkamers, badkamer (bad, dubbele wastafel, toilet), wasruimte, stookruimte, garage met elektrische deur, tuin.
Diverse : totale oppervlakte: 1.198 m², woonoppervlakte: +/- 130 m², dubbele beglazing in hout, centrale verwarming op stookolie, 24 fotovoltaïsche panelen, elektrisch zonnescherm op terras.
Energieprestaties : EPC-nr.: 20250127021873, EPC : F, Energiescore : 453 kWh/m².an, Energieverbruik : 83969 kWh/jaar.
GEWELDIGE LOCATIE !
Meer informatie op www.wolfs.be !
-
Kamers
3 k(s).
-
Surfaces habitables
Totaal : 130 m²
bebouwde oppervlakte - 150m²
slaapkamer 1 - 13m²
slaapkamer 2 - 13m²
slaapkamer 3 - 15m²
terras 1 - 32m²
woonkamer - 42m²
keuken - 10m²
-
Superficie totale
1198 m²
-
Referentie
5592
-
Energie
