In het charmante dorpje Glons presenteert Makelaardij Wolfs deze handelswoning met woongedeelte. Deze woning is momenteel verhuurd en biedt een uitstekende investeringsmogelijkheid. Een must-see !
Kelder : opslagkelders.
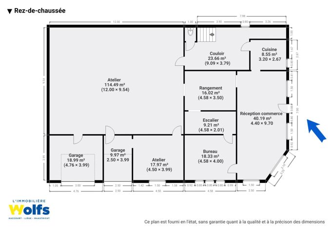
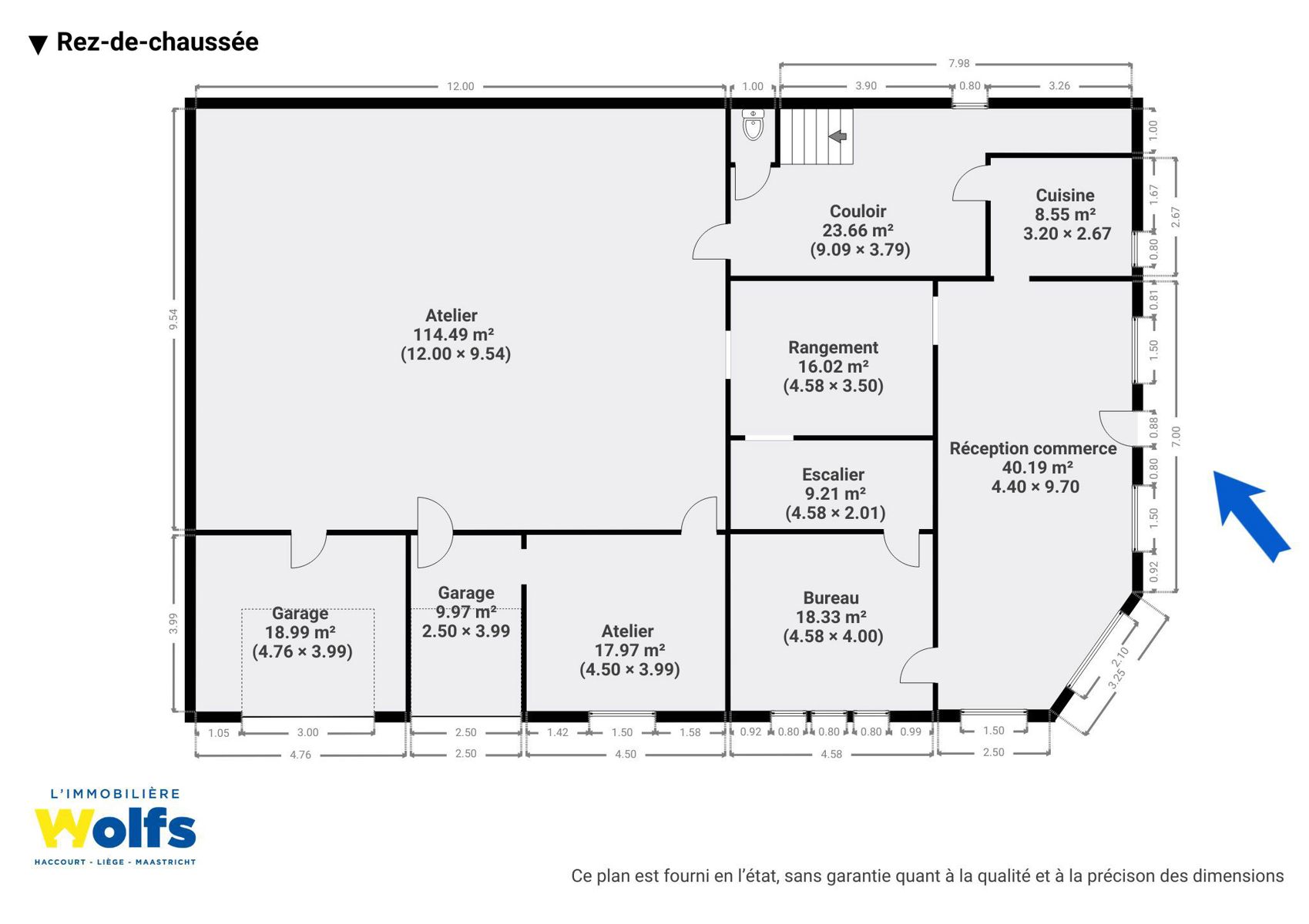
Begane grond : commerciële ruimte van ongeveer 83 m², werkplaats van ongeveer 130 m², twee garages van ongeveer 10 en 19 m², woonkamer, apart toilet.
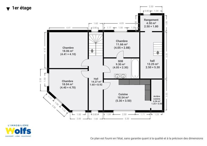
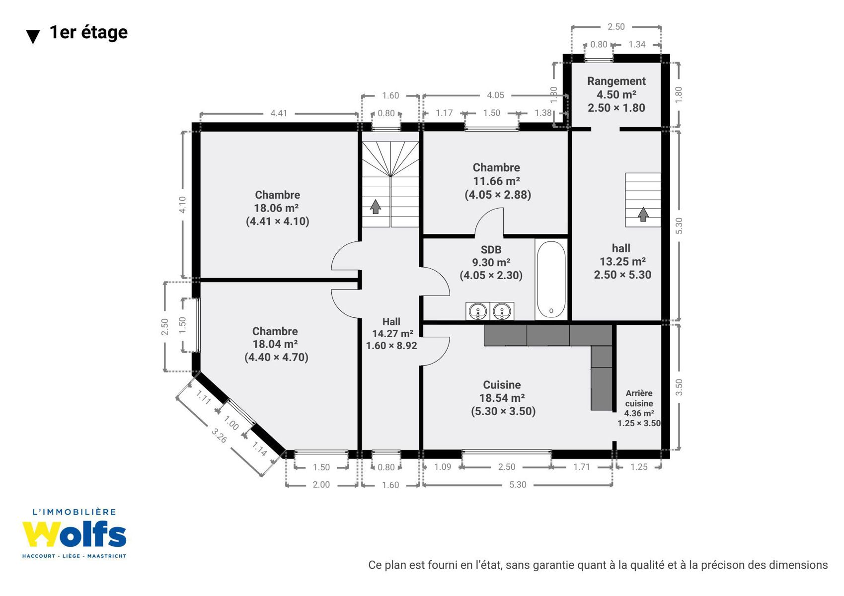
1e verdieping : hal, drie slaapkamers, ingerichte keuken, bijkeuken, badkamer (bad en wastafels), toegang tot zolder.
2e verdieping : 110 m² zolder.
Overig : totaal vloeroppervlak: 373 m², woonoppervlak: ca. 389 m², PVC dubbele beglazing, centrale verwarming op olie.
A MUST SEE !
Meer informatie op www.wolfs.be !
