Appartementsgebouw te koop
Grand Route 285 | Beyne-Heusay - 4610
215.000€
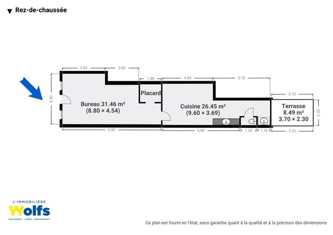
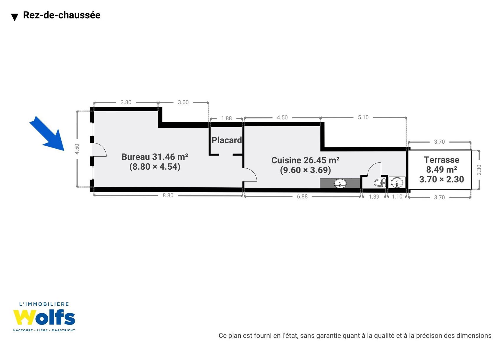
Begane grond : inkomhal, twee commerciële ruimtes van +/- 31 m² en 26 m² met kitchenette, apart toilet, terras en toegang tot de duplex.
1ste verdieping : terras, woonkamer van +/- 49 m² met volledig uitgeruste keuken en pelletkachel.
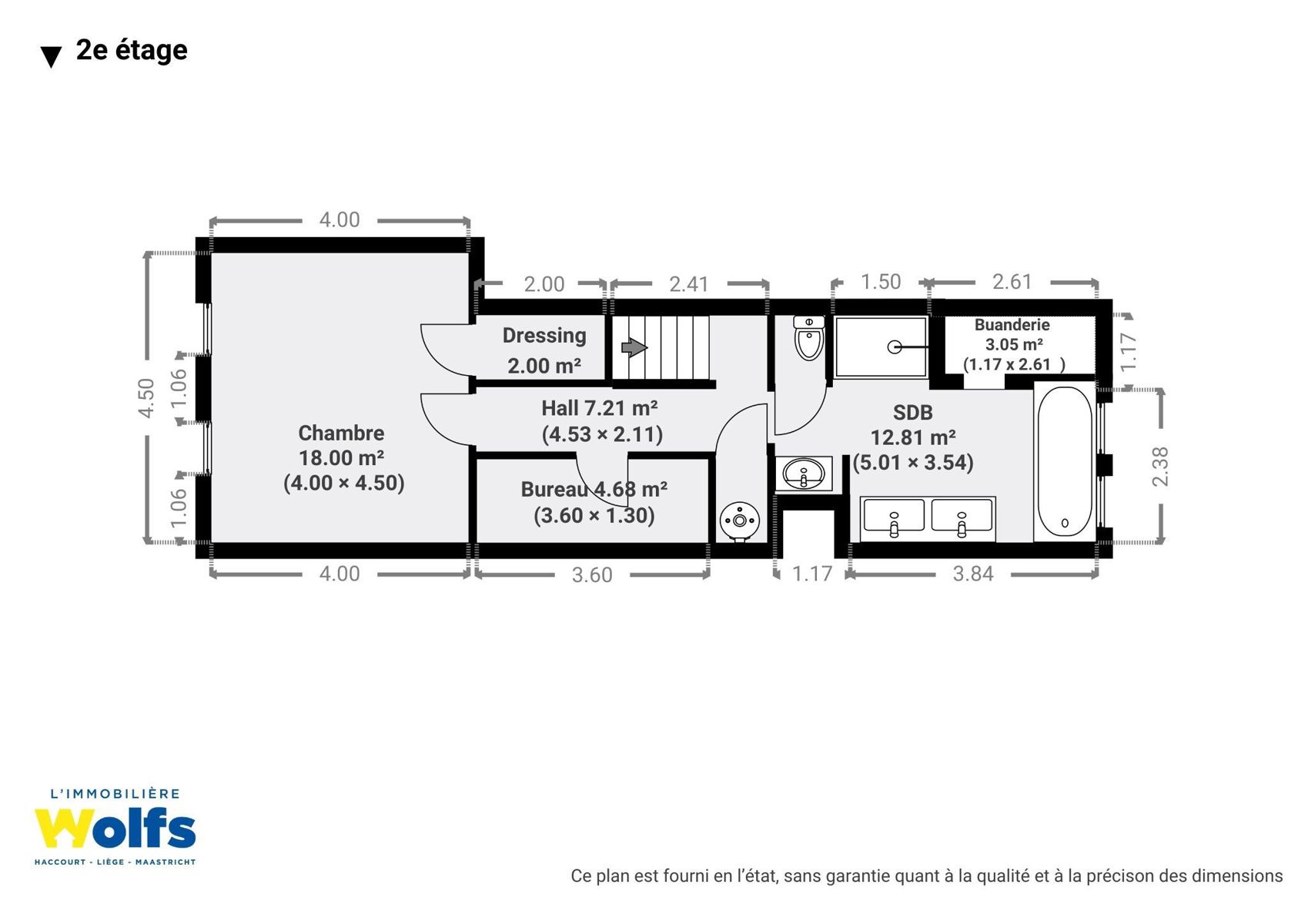
2de verdieping : nachthal, ruime slaapkamer van ongeveer 18 m² met dressing, studeerhoek, badkamer met wasruimte van ongeveer 16 m² (douche, bad, wastafel en apart toilet).
3e verdieping : mezzanine slaapkamer van ongeveer 12 m².
Diversen : fotovoltaïsche panelen, aangesloten accessoires, pelletkachel en warmtepomp, een watermeter en twee elektriciteitsmeters, PVC dubbele beglazing, woonoppervlakte: 155 m².
Energieprestaties : EPC-nr.: 20150528010413, EPC : D, Energiescore : 304 kWh/m².an, Energieverbruik : 41191 kWh/jaar.
EEN NIET TE MISSEN KANS !
UITSTEKENDE LOCATIE !
Meer informatie op www.wolfs.be !
-
Kamers
2 k(s).
-
Surfaces habitables
Totaal : 155 m²
slaapkamer 1 - 18m²
slaapkamer 2 - 11.88m²
terras 1 - 20m²
woonkamer - 49.09m²
bureau - 4.68m²
-
Referentie
5648c
-
Energie
