Buitengewoon huis te koop
Mont 14 | Grand-Halleux - 6698
545.000€
Makelaardij Wolfs heeft het genoegen u deze ruime karakterwoning voor te stellen in het charmante dorpje Grand-Halleux in de gemeente Vielsalm! Deze woning bestaat uit een woongedeelte, een gîte met accommodatie voor 12 personen, een polyvalente ruimte van 75 m² en een vrijstaand gebouw met tal van verbouwingsmogelijkheden. Profiteer van een woning in uitstekende staat, ideaal gelegen in een bucolische omgeving aan het begin van vele wandelingen. Je zult zeker verliefd worden !
Kelder :
Leefruimte : twee kelders +/- 16 m² elk.
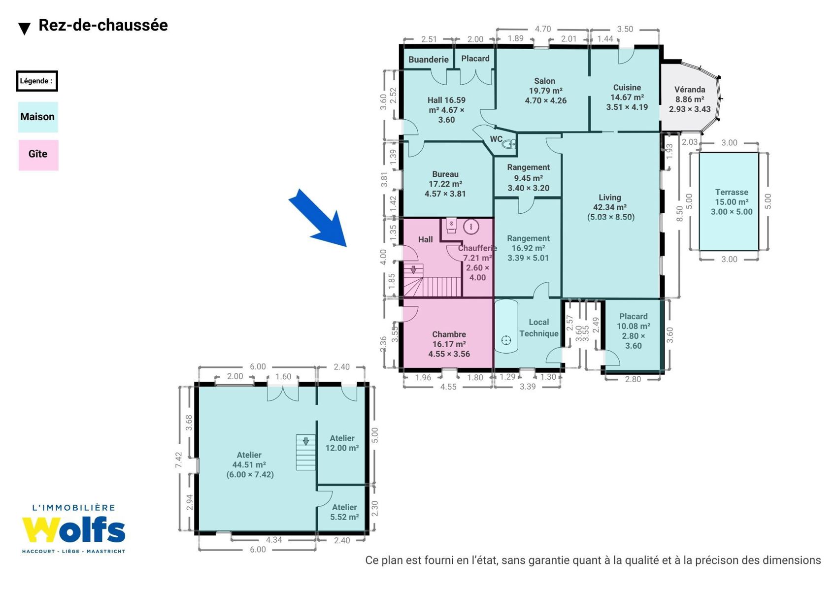
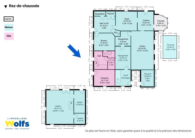
Begane grond :
Huis : inkomhal, bureau of slaapkamer, apart toilet, woonkamer (salon, eetkamer) met houtkachel, ruime ingerichte keuken uitgevend op veranda, verschillende bergruimtes, bijkeuken, tuin met terras op het westen, vrijstaand gebouw.
Gite en polyvalente ruimte : aparte inkomhal, slaapkamer of bureau, stookruimte.
1e verdieping :
Woongedeelte : nachthal, apart toilet, badkamer (bad, douche, wastafel), drie slaapkamers.
Gite en polyvalente ruimte : nachthal, apart toilet, woonkamer (salon, eetkamer) met open ingerichte keuken en mezzanine, apart toilet, twee slaapkamers, polyvalente ruimte van ongeveer 75 m².
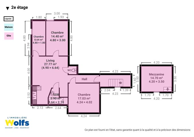
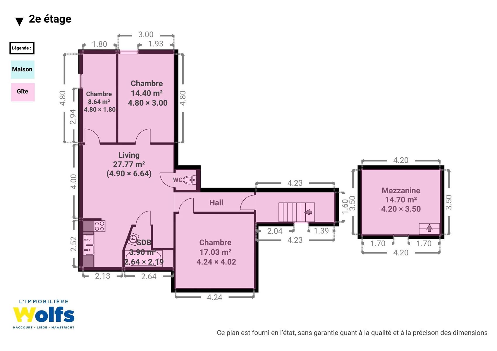
2e verdieping :
Gite : nachthal, apart toilet, woonkamer met open ingerichte keuken, badkamer (ligbad, wastafel), drie slaapkamers.
Diverse : totale oppervlakte : 2.243 m², K.I.: 354 €, verwarmd vloeroppervlak (PEB): +/- 617 m², dubbele beglazing in hout, centrale verwarming op stookolie, twee elektrische meters (conformiteitsrapport beschikbaar).
Energieprestaties : EPC-nr.: 20240201018203, EPC : C, Energiescore : 235 kWh/m².an, Energieverbruik : 145 320 kWh/jaar.
EEN ONTDEKKING !
VELE MOGELIJKHEDEN !
Meer informatie op www.wolfs.be !
-
Kamers
9 k(s).
-
Surfaces habitables
Totaal : 617 m²
bebouwde oppervlakte - 617m²
slaapkamer 1 - 16m²
slaapkamer 2 - 21m²
slaapkamer 3 - 16m²
slaapkamer 4 - 17m²
slaapkamer 5 - 16m²
slaapkamer 6 - 14m²
slaapkamer 7 - 17m²
terras 1 - 15m²
woonkamer - 42m²
eetkamer - 20m²
keuken - 15m²
bureau - 17m²
-
Superficie totale
2243 m²
-
Referentie
5657A
-
Energie
