Huis te koop
Rue Basse-Préalle 125 | Herstal - 4040
265.000€
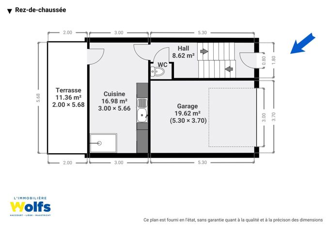
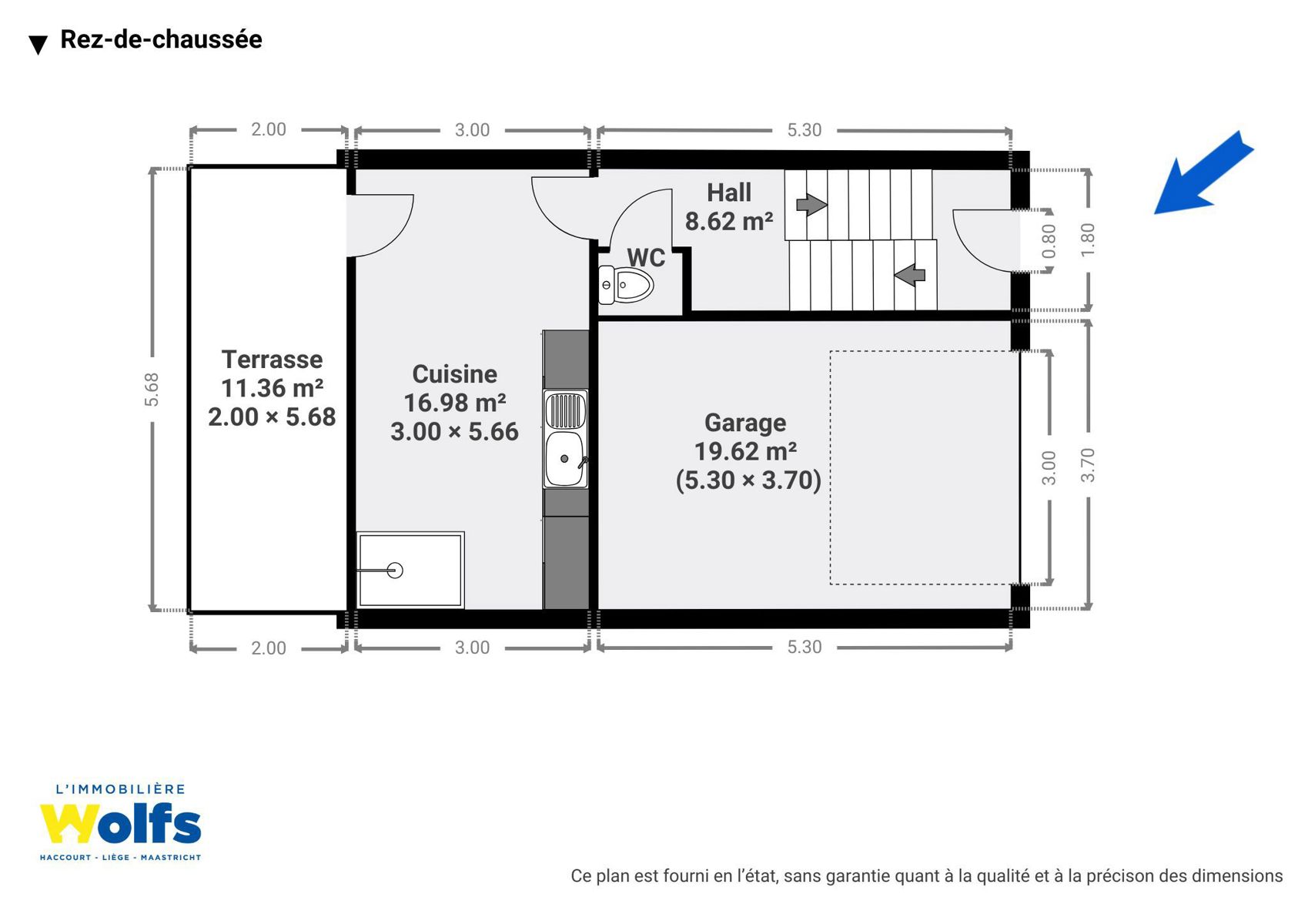
Kelder : twee opslagkelders van ongeveer 8 en 14 m², garage van ongeveer 20 m².
Begane grond : hal met apart toilet, +/- 17 m² keuken met toegang tot een terras en mooie tuin.
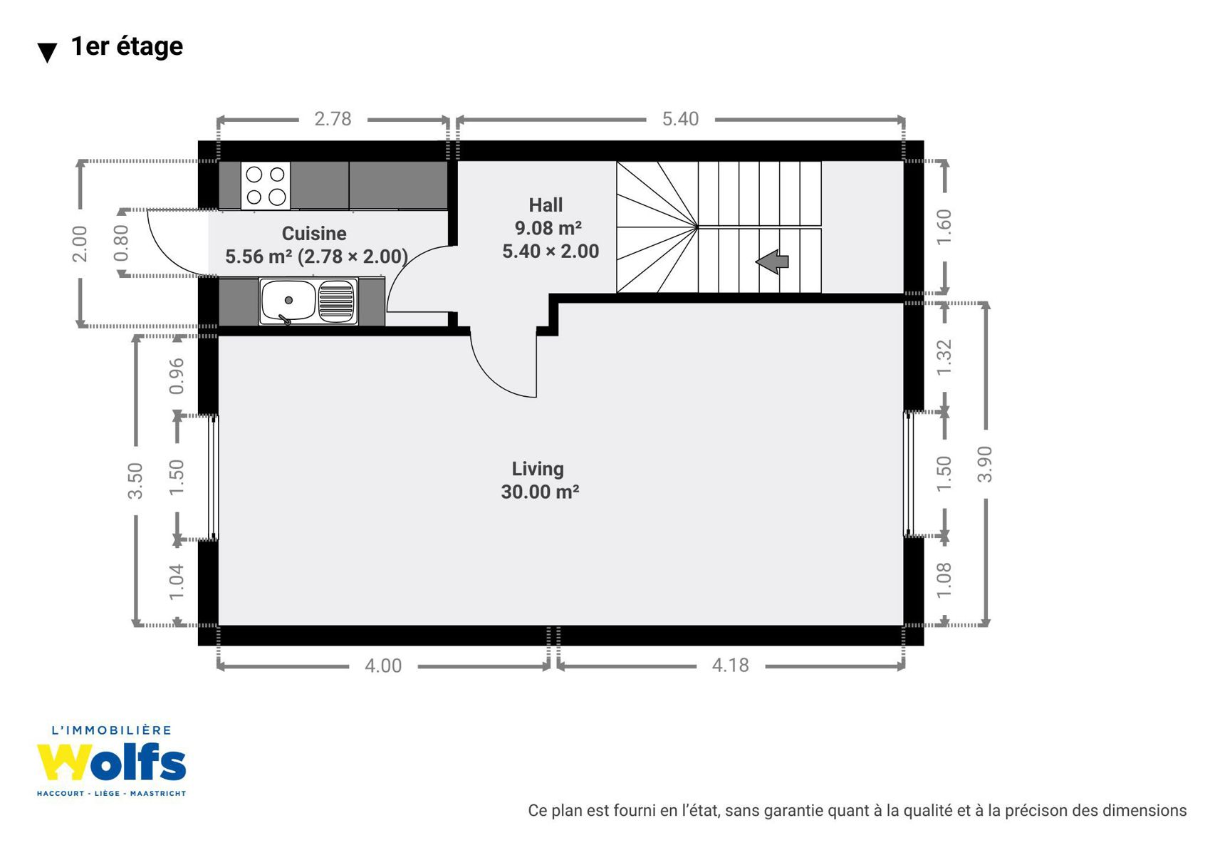
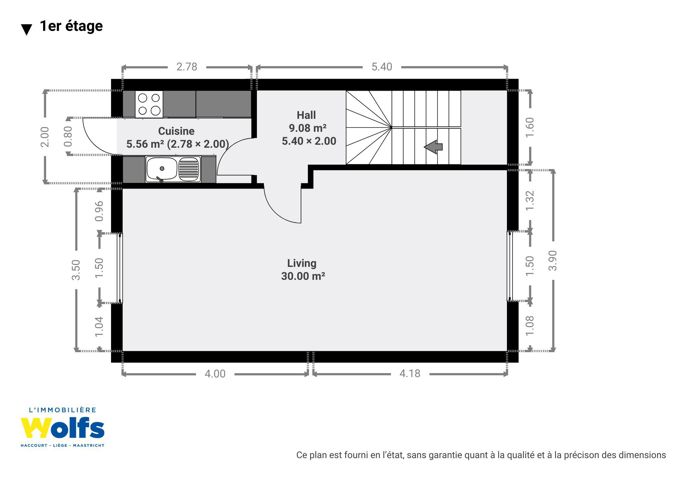
1e verdieping : hal, lichte woonkamer van 30 m², keuken met toegang tot een terras en mooie tuin.
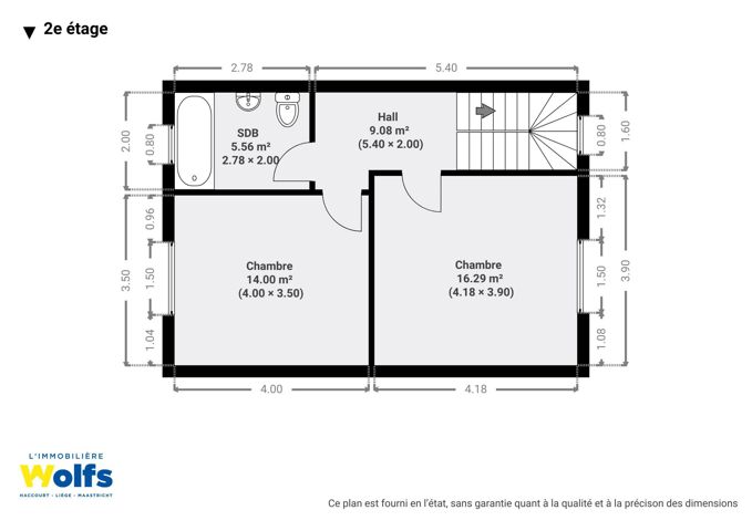
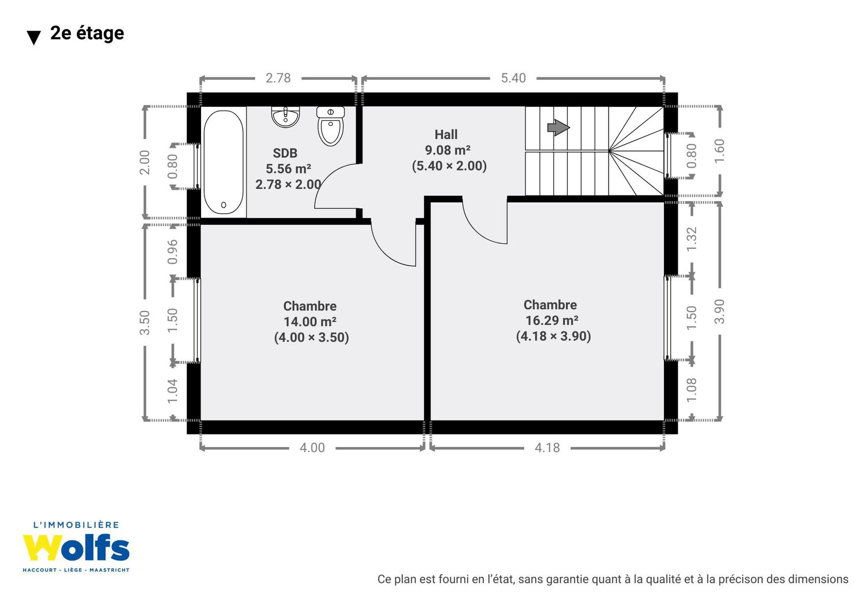
2e verdieping : nachthal, twee ruime slaapkamers van ongeveer 14 en 16 m², badkamer (bad, wastafel en toilet).
3e verdieping : grote slaapkamer van ongeveer 38 m², ideaal als master suite, telewerkruimte of vierde slaapkamer.
Overig : verwarmd vloeroppervlak (PEB): 176 m², dubbele en enkele beglazing in hout en PVC, centrale verwarming op olie, K.I.: 941 €.
Energieprestaties : EPC-nr.: 202505150060099, EPC : F, Energiescore : 470 kWh/m².an, Energieverbruik : 82.735 kWh/jaar.
WACHT NIET TE LANG OM HET TE ONTDEKKEN !
Meer informatie op www.wolfs.be !
-
Kamers
4 k(s).
-
Surfaces habitables
Totaal : 176 m²
slaapkamer 1 - 14m²
slaapkamer 2 - 16.29m²
slaapkamer 3 - 38.45m²
terras 1 - 11m²
woonkamer - 30m²
keuken - 6m²
-
Superficie totale
175 m²
-
Referentie
5664
-
Energie
