Huis te koop
Rue Wazon 9 | Liège - 4000
249.000€
Makelaardij Wolfs heeft het genoegen u deze ruime karakterwoning voor te stellen voor renovatie, ideaal gelegen op de hoogten van Luik. Met een indrukwekkende bebouwde oppervlakte van 350 m² biedt dit middenklasse gebouw een brede waaier aan verbouwingsmogelijkheden (eengezinswoning, gedeelde investering, kantoorgebouw, enz., onder voorbehoud van vergunning). Ontdek het meteen !
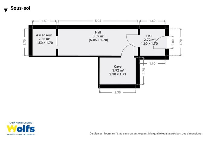
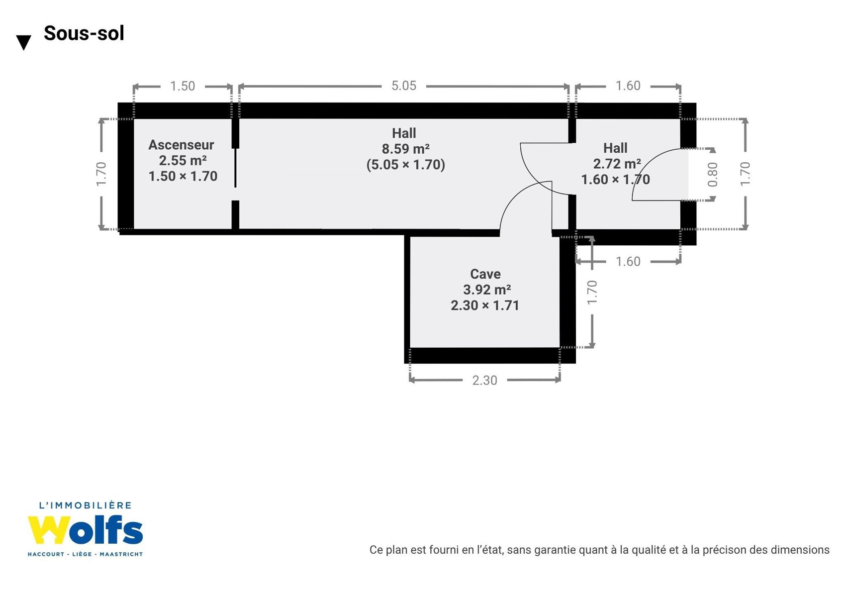
Kelder : opslagkelders.
Begane grond : hal, wasruimte, stookruimte, lift.
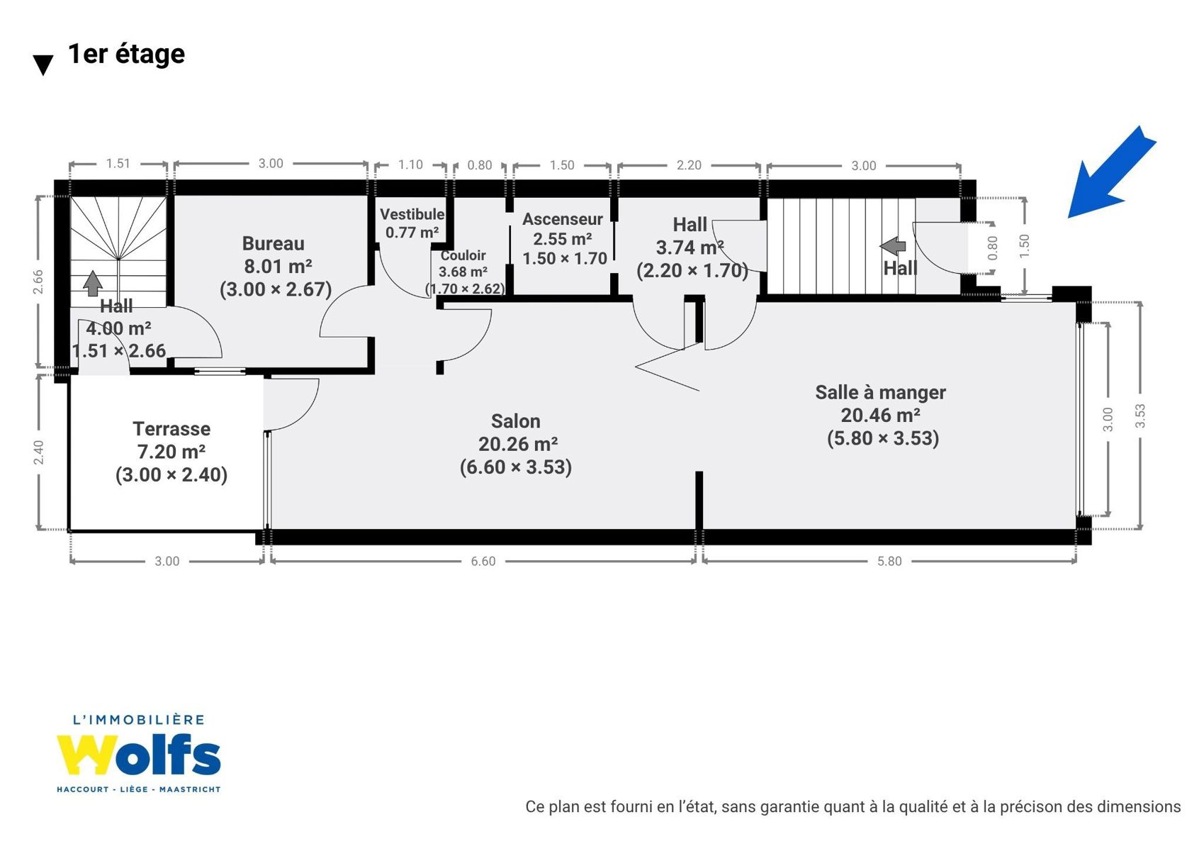
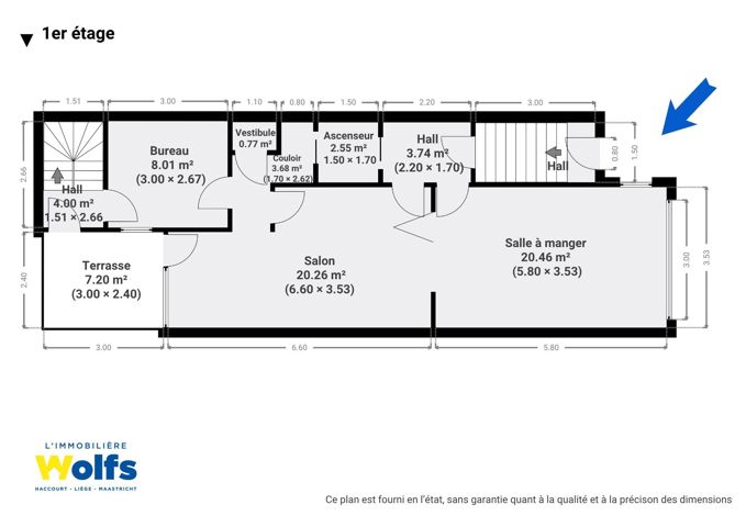
1e verdieping : hal, salon, eetkamer, studeerkamer, terras.
2e verdieping : nachthal, apart toilet, badkamer, drie slaapkamers, tuin met terras.
3e verdieping : nachthal, keukenkamer (extra badkamer mogelijk), twee slaapkamers.
Zolder : bergzolder.
Overig : totaal vloeroppervlak: 150 m², woonoppervlak: ca. 352 m², houten ramen met enkel glas, centrale verwarming op olie, lift (onderhoud uit te voeren om het weer in orde te maken).
Energieprestaties : EPC-nr.: 20160505004360, EPC : F, Energiescore : 426 kWh/m².an, Energieverbruik : 149.825 kWh/jaar.
EEN ONTDEKKING !
Meer informatie op www.wolfs.be !
-
Kamers
6 k(s).
-
Surfaces habitables
Totaal : 352 m²
bebouwde oppervlakte - 352m²
slaapkamer 1 - 22m²
slaapkamer 2 - 21.27m²
slaapkamer 3 - 15.83m²
slaapkamer 4 - 14.4m²
slaapkamer 5 - 8.1m²
woonkamer - 20.26m²
eetkamer - 20.46m²
bureau - 8m²
-
Superficie totale
150 m²
-
Referentie
5680A
-
Energie
