Villa te koop
Allée du Hennen 16 | Visé - 4600
815.000€
Kelder : geventileerde kruipruimte.
Begane grond : ontvangsthal, ruime hal van +/- 28 m² met pelletkachel, apart toilet, lichte woonkamer van +/- 44 m² met studeerhoek, volledig ingerichte keuken van +/- 25 m², ingerichte bijkeuken met kasten, prachtige terrassen met overdekt gedeelte, tuinhuisje, dubbele garage van +/- 39 m² met elektrische sectionaaldeuren, verharde oprit.
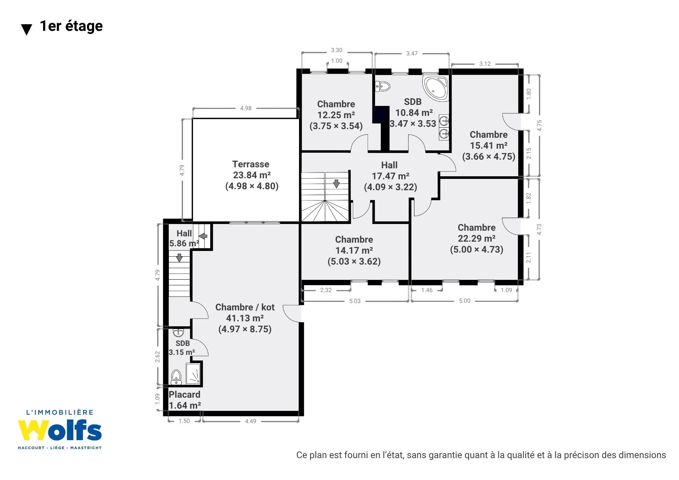
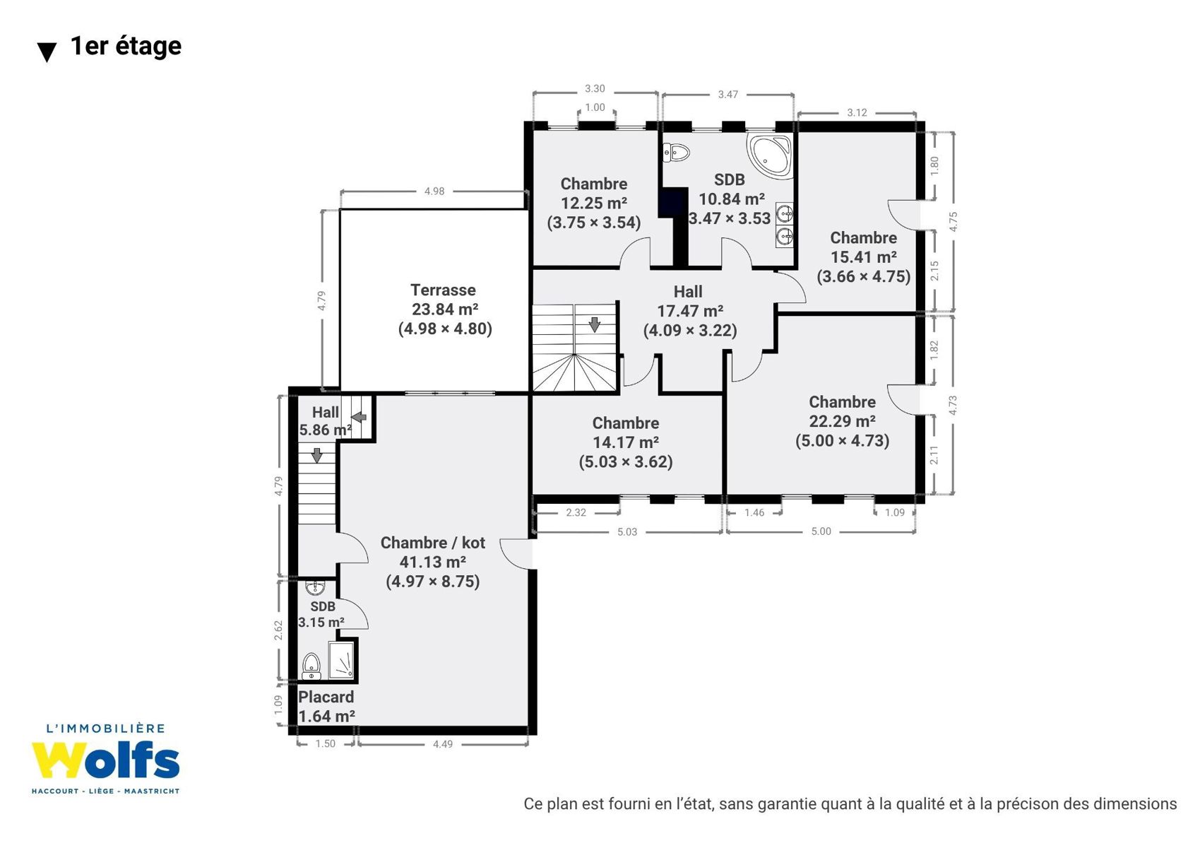
1ste verdieping : nachthal van +/- 17 m² met toegang tot het terras van de studio van 40 m², vier slaapkamers van +/- 12, 14, 15 en 22 m² uitgerust met waterpunten, badkamer (wastafels, bad, douche en toilet).
2e verdieping : overloop, master suite of studio van ca. 42 m² met watertoevoer voor een kitchenette, doucheruimte (wastafel, douche en toilet), overdekt terras van ca. 9 m² met prachtig vrij uitzicht over het stadje Visé.
Studio bereikbaar via een tweede trap vanuit de ontvangsthal :
1e verdieping : overloop, ruime woonkamer van 41 m² met watervoorziening voor een keuken en kleine slaapkamer op de mezzanine erboven, doucheruimte (wastafel, douche en toilet), prachtig terras van 40 m².
Diversen : centrale verwarming op stadsgas, driedubbele PVC inbraakwerende beglazing, alarmsysteem, elektriciteit conform tot 2040, 36 zonnepanelen, waterontharder, totale vloeroppervlakte: 749 m², woonoppervlakte: +/- 310 m².
Energieprestaties : EPC-nr. 20160221009626, EPC : B, Energiescore : 98 kWh/m².an, Energieverbruik : 27.633 kWh/jaar.
EDELE MATERIALEN !
ONBERISPELIJKE STAAT !
Meer informatie op www.wolfs.be !
-
Kamers
6 k(s).
-
Surfaces habitables
Totaal : 310 m²
slaapkamer 1 - 22.29m²
slaapkamer 2 - 15.41m²
slaapkamer 3 - 14.17m²
slaapkamer 4 - 12.25m²
slaapkamer 5 - 41.13m²
slaapkamer 6 - 35.78m²
woonkamer - 38.99m²
keuken - 25.45m²
bureau - 6.61m²
-
Referentie
5687
-
Energie
