Huis te koop
Rue Lemaire 6 | Haccourt - 4684
249.000€
Kelder : een kelder.
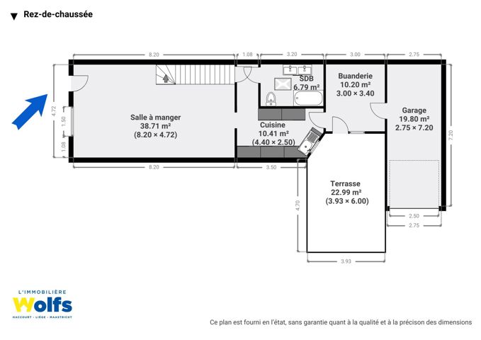
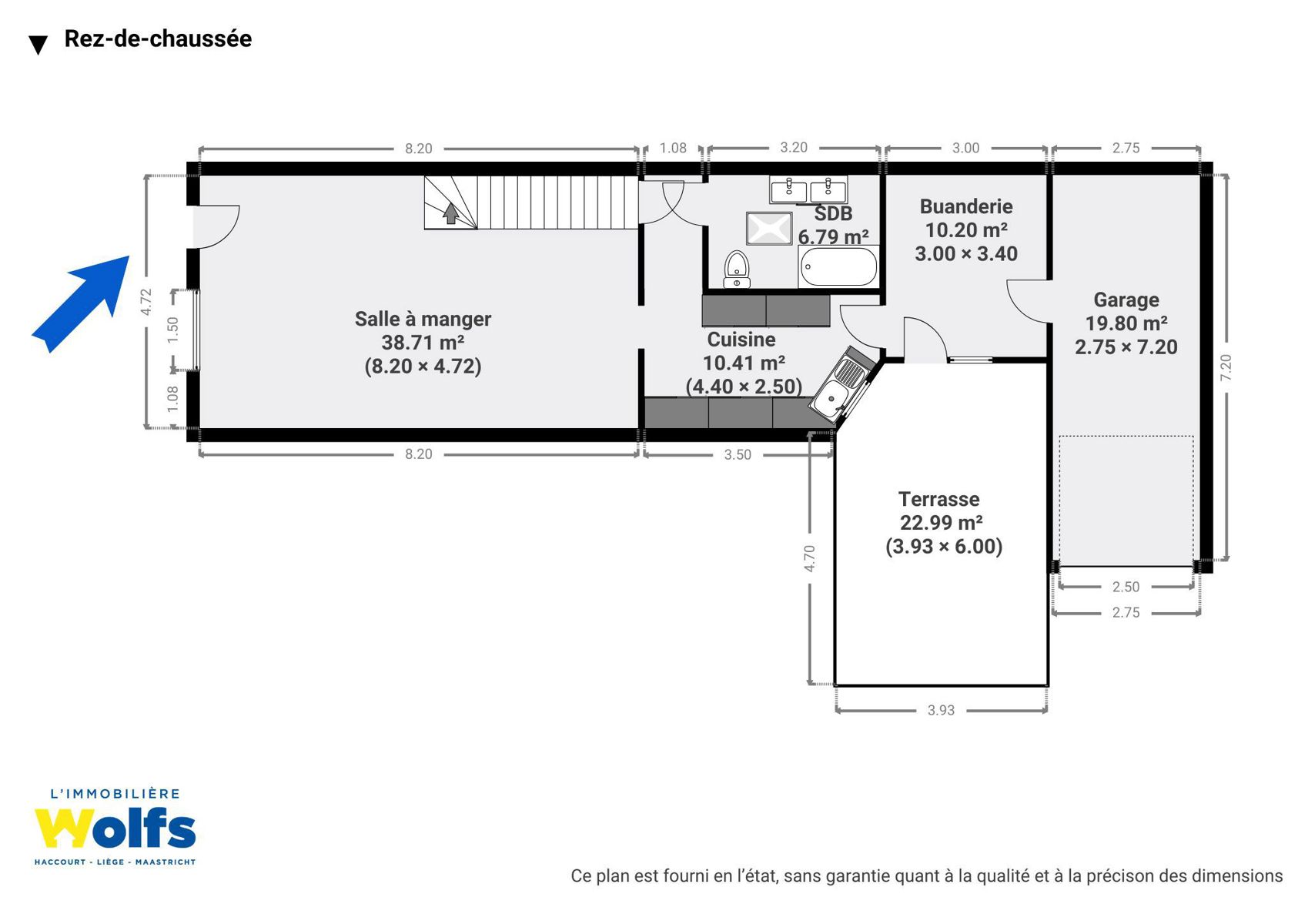
Begane grond : leefruimte van +/- 39 m² met woonkamer en eetkamer, ingerichte keuken, badkamer (wastafels, toilet en bad), wasruimte, garage van +/- 20 m², mooi terras van +/- 23 m² met uitzicht op een binnenplaats, en een eigen parkeerplaats.
1e verdieping : twee ruime slaapkamers van +/- 19 en 20 m², waarvan één in het verlengde van de andere.
2e verdieping : slaapkamer en zolder die kan worden ingericht als kleedkamer.
Diversen : totale oppervlakte: 150 m², bewoonbare oppervlakte +/- 145 m², dubbele beglazing in PVC, elektriciteit conform tot 2041, K.I.: 575 €, fotovoltaïsche panelen, elektrische verwarming met accumulatie, pelletkachel.
Energieprestaties : EPC-nr.: 20160818017234, EPC: G, Energiescore : 859 kWh/m²/jaar, Energieverbruik : 124796 kWh/jaar.
ONTDEK HET !
Meer informatie op www.wolfs.be !
-
Kamers
3 k(s).
-
Surfaces habitables
Totaal : 145 m²
slaapkamer 1 - 18.45m²
slaapkamer 2 - 20.81m²
slaapkamer 3 - 21.15m²
terras 1 - 22.99m²
woonkamer - 38.71m²
keuken - 10.41m²
-
Superficie totale
150 m²
-
Referentie
5689
-
Energie
