Bungalow te koop
Rue Joseph Muller 78 | Warsage - 4608
495.000€
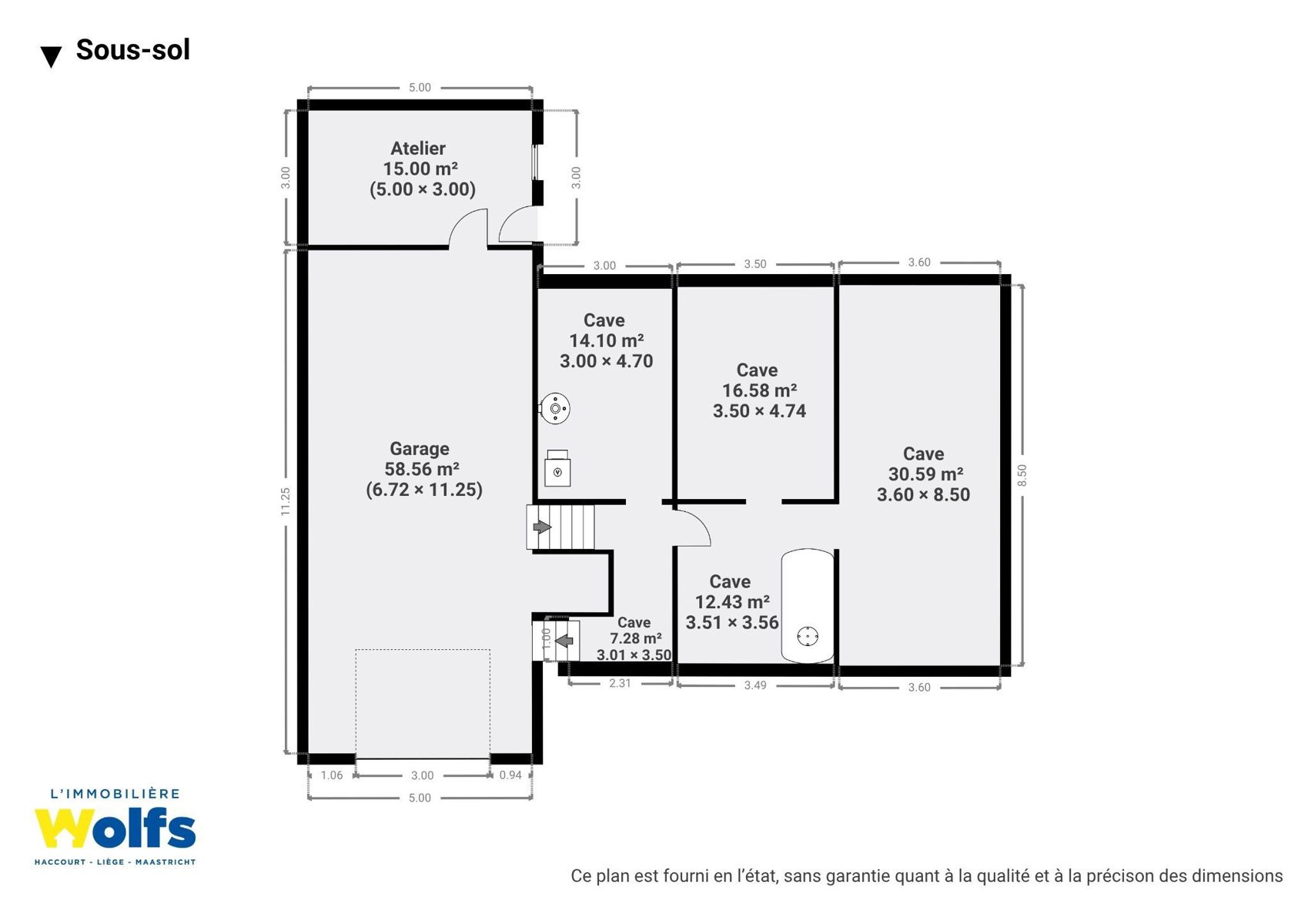
Kelder : vijf kelders, waaronder een stookruimte.
Niveau -1/2 : grote garage voor twee auto's van ongeveer 60 m² + opslag, werkplaats met uitgang naar de tuin.
Begane grond : oprit, grote parkeerplaats aan de voorzijde, ruime ontvangsthal, apart toilet, grote woonkamer van 45 m² met mezzanine, volledig ingerichte keuken van 28 m² met eethoek, terras, aantrekkelijke, sierlijke, volledig omheinde tuin met prachtig uitzicht over het landschap, tuinhuisje.
Niveau +1/2 : grote nachthal met studeerhoek of slaapkamer, twee slaapkamers +/- 15 m² elk, badkamer (dubbele wastafels, bad en douche), bijkeuken met toilet.
Etage : een ruime salon van ca. 39 m² op een mezzanine met uitzicht op de woonkamer en een slaapkamer van ca. 14 m².
Zolder boven niveau + 1/2 op schutting: zolder kan worden verbouwd tot extra slaapkamers.
Diversen : PVC dubbele beglazing met rolluiken (elektrische rolluiken op begane grond), centrale verwarming op olie, regenwatertank, robot grasmaaier, alarmsysteem, woonoppervlak: +/- 210 m², totale oppervlakte: 808 m², K.I.: € 1.338.
Energieprestaties : EPC-nr. : 20190926021641, EPC : C , Energiescore : 245 kWh/m².an, Energieverbruik : 68 709 kWh/jaar.
PRACHTIG UITZICHT OVER HET PLATTELAND !
WACHT NIET LANGER OM HET TE ONTDEKKEN !
Meer informatie op www.wolfs.be !
-
Kamers
4 k(s).
-
Surfaces habitables
Totaal : 210 m²
slaapkamer 1 - 15.12m²
slaapkamer 2 - 15.12m²
slaapkamer 3 - 13.76m²
woonkamer - 44.95m²
keuken - 28.08m²
bureau - 9.88m²
-
Superficie totale
808 m²
-
Referentie
5699
-
Energie
