Huis te koop
Rue Jacquet 2 | Othée - 4340
290.000€
Kelderverdieping : twee kelders met stookruimte.
Begane grond : hal met garderobe, ingerichte keuken, woonkamer van ca. 34 m² (salon, eetkamer) met open haard en grote ramen met uitzicht op de tuin, kamer van ca. 17 m² met tal van gebruiksmogelijkheden en mogelijkheid van onafhankelijke toegang via de kleine binnenplaats en poort aan de voorzijde.
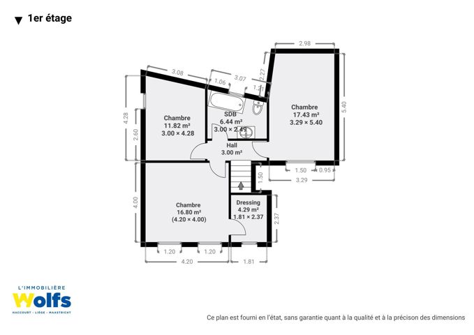
Etage : overloop, nachthal, drie slaapkamers van ca. 12, 17 en 18 m², waarvan één met een kleine kleedkamer, badkamer (wastafel, ligbad en toilet).
Zolder : 46 m² zolder die verbouwd zou kunnen worden tot een vierde slaapkamer, momenteel bereikbaar via een uitschuifbare trap, maar mogelijkheid om een normale trap te installeren door de slaapkamer van 17 m² iets te verkleinen.
Diverse : woonoppervlakte: ca. 123 m² (ca. 46 m² zolder), totale oppervlakte: 237 m², centrale verwarming op olie, PVC dubbele beglazing, dak volledig gerenoveerd en geïsoleerd.
Energieprestaties : EPC-nr.: 20250626009683, EPC : D, Energiescore : 279 kWh/m².an, Energieverbruik : 48 413 kWh/jaar.
IN PERFECTE STAAT !
VEEL MOGELIJKHEDEN !
Meer informatie op www.wolfs.be !
-
Kamers
3 k(s).
-
Surfaces habitables
Totaal : 123 m²
slaapkamer 1 - 11.82m²
slaapkamer 2 - 16.8m²
slaapkamer 3 - 17.43m²
woonkamer - 34.15m²
eetkamer - 17.32m²
keuken - 10.75m²
-
Referentie
5701
-
Energie
