Villa te koop
Rue Croix Henrard 59 | Trooz (Gomzé-Andoumont) - 4870
525.000€
Makelaardij Wolfs presenteert u met veel plezier deze aangename villa met garage, tuin en paardenfaciliteiten, gelegen op een prachtig perceel van 8.546 m² aan de rand van het bos. Deze woning ligt in een groene omgeving op de heuvels van Gomzé-Andoumont en is een echte aanrader voor liefhebbers van rust en natuur. Het pand ligt vlak bij de snelweg A25 Luik-Luxemburg, waardoor u gemakkelijk kunt profiteren van alle voorzieningen van de steden Beaufays en Louveigné. U zult genieten van het huis en zijn comfortabele leefruimtes, de 8 paardenboxen in perfecte staat, de manege en de aangrenzende weiden. Mogelijkheid om extra weiden te huren.
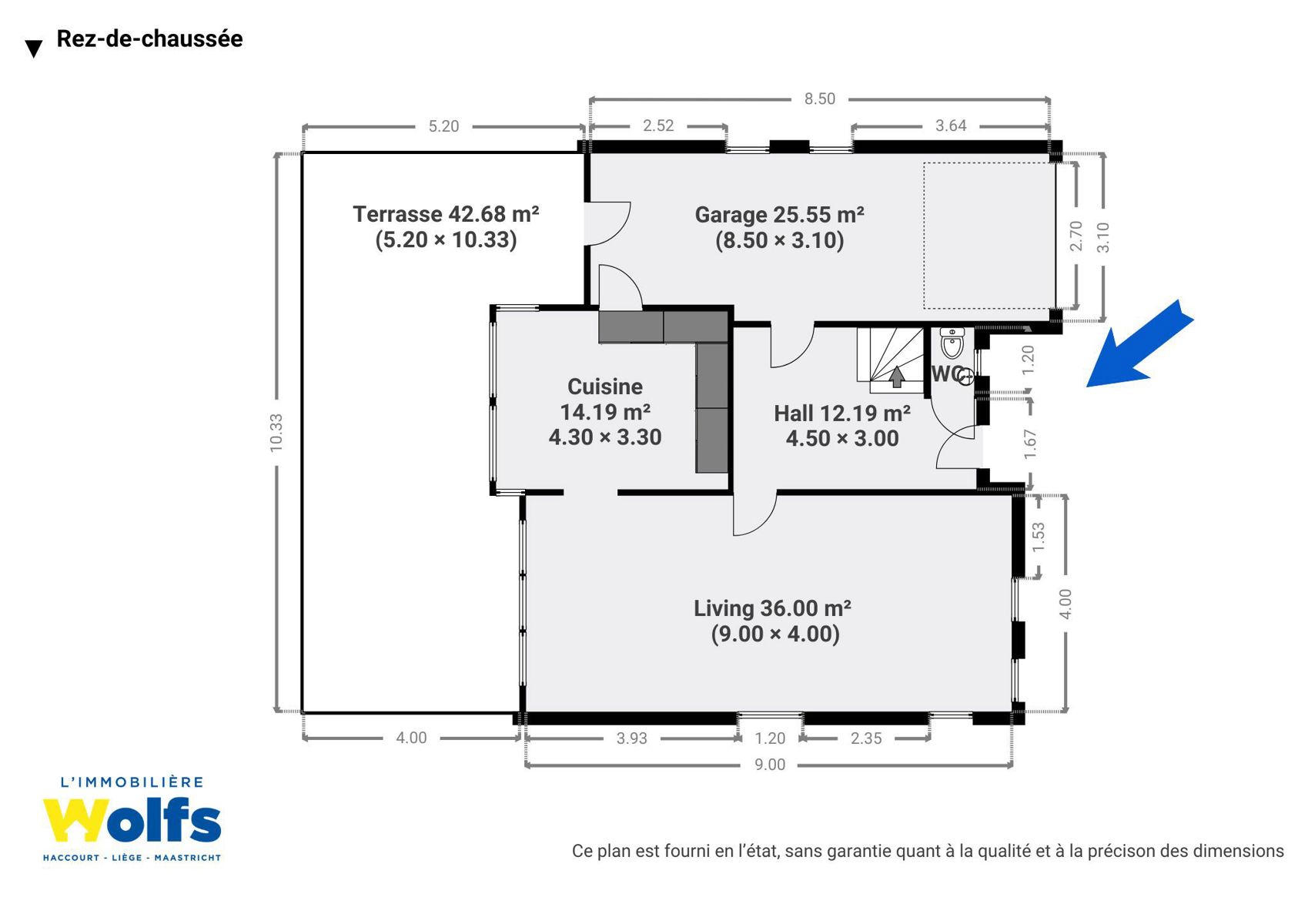
Begane grond : inkomhal, apart toilet, woonkamer (salon, eetkamer) met houtkachel, ingerichte keuken, garage, terras, aangename tuin, manege, acht paardenboxen met aparte toegang, weiden.
1e verdieping : nachthal, drie slaapkamers, badkamer (dubbele wastafel, bad, douche, toilet), opslagzolders.
Diversen : totale oppervlakte: 8.546 m², bewoonbare oppervlakte: +/- 140 m², K.I.: 965 €, dubbele beglazing in hout, elektrische accumulatieverwarming, regenwatertank voor het huis, driefasige elektriciteit met aansluiting voor de paardenboxen, water in de boxen via een regenwatertank.
Energieprestaties : EPC-nr.: 20250901007943, EPC: G, Energiescore : 570 kWh/m²/jaar, Energieverbruik : 57753 kWh/jaar.
EXCLUSIEF AANBOD, ZELDEN BESCHIKBAAR OP DE MARKT !
Meer informatie op www.wolfs !
-
Kamers
3 k(s).
-
Surfaces habitables
Totaal : 140 m²
slaapkamer 1 - 13.44m²
slaapkamer 2 - 10.05m²
slaapkamer 3 - 9.76m²
terras 1 - 43m²
woonkamer - 36m²
keuken - 14.19m²
-
Superficie totale
8546 m²
-
Referentie
5725b
-
Energie
