Charmant huis te koop
Nelhain 21 | Mortroux - 4607
535.000€
In het prachtige dorp Mortroux, iets terug van de openbare weg en bereikbaar via een lange privéoprit met elektrische poort, heeft Makelaardij Wolfs het voorrecht u dit prachtige pand te presenteren met een unieke leefomgeving, die zowel veilig als intiem is en volledig omheind. Enkele van de vele troeven: 28 zonnepanelen, die zorgen voor energiecomfort en duurzame besparingen, een bijgebouw met dubbele garage, een carport, een verwarmd zwembad, een jacuzzi, een charmante aangelegde tuin met terrassen, een fontein en een vijver, ideaal om te genieten van de rust van het platteland !
Halfniveau : een voorraadkamer die bereikbaar is via een trap naast de keuken.
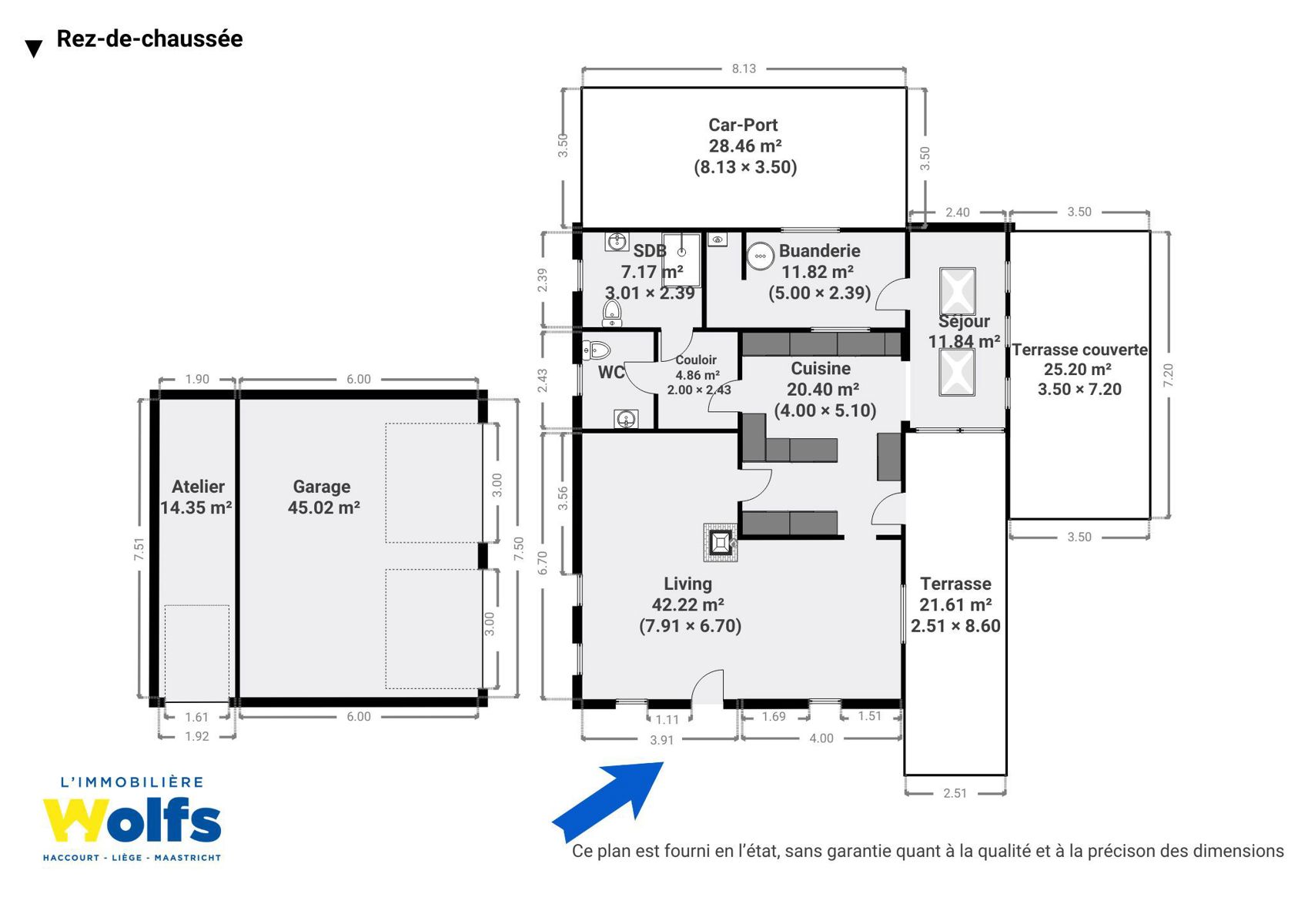
Begane grond : ruime leefruimte van +/- 42 m² met houtkachel, nieuwe volledig uitgeruste keuken van +/- 20 m², woonkamer met tweede houtkachel, hal, apart toilet, doucheruimte (wastafel, douche en toilet), wasruimte met stookruimte, terrassen van +/- 47 m² waarvan +/- 25 m² overdekt, carport voor twee auto's, bijgebouw met dubbele garage van +/- 60 m² met werkplaats en opslagzolder, prachtige, volledig aangelegde tuin met fontein, waterpartij en gloednieuw verwarmd zwembad, privéoprit van +/- 55 m, ruime parkeerplaats.
1e verdieping : nachtelijke hal op de mezzanine boven de woonkamer met bureauhoek, een master suite bestaande uit een slaapkamer van +/- 13 m², een kleedkamer van +/- 10 m², een bureau of babykamer van +/- 7 m² en een badkamer (dubbele wastafels, bad, douche en toilet), een tweede slaapkamer van +/- 12 m², een badkamer (dubbele wastafels en bad).
2e verdieping : nachthal, twee slaapkamers van +/- 14 en 16 m², waarvan één met doucheruimte (wastafel, douche en toilet).
Diversen : totale oppervlakte: 1.783 m², bewoonbare oppervlakte: +/- 210 m², R.C.: 686 €, dubbele beglazing in PVC, centrale verwarming op propaangas, 28 fotovoltaïsche panelen, nieuwe thermodynamische boiler, airconditioning warm/koud in de woonkamer en een slaapkamer op de tweede verdieping, zwembad verwarmd door warmtepomp (2025), talrijke buitenverlichting, oplaadpunt voor elektrische auto.
Energieprestaties : EPC-nr.: 20250826033087, EPC: C, Energiescore : 182 kWh/m²/jaar, Energieverbruik : 45 955 kWh/jaar.
EEN ECHTE AANRADER !
MOOIE WONING IN EEN GEWILDE REGIO !
Meer informatie op www.wolfs.be !
-
Kamers
4 k(s).
-
Surfaces habitables
Totaal : 210 m²
slaapkamer 1 - 16.1m²
slaapkamer 2 - 14.26m²
slaapkamer 3 - 12.89m²
slaapkamer 4 - 11.51m²
terras 1 - 25m²
woonkamer - 42.22m²
keuken - 20.4m²
bureau - 6.21m²
-
Superficie totale
1783 m²
-
Referentie
5732
-
Energie
