Villa te koop
Rue d'Andoumont 89 | Gomzé-Andoumont - 4140
450.000€
Gelijkvloers : ontvangsthal, kast, wasruimte, stookruimte, dubbele garage, buitenparking en intieme tuin.
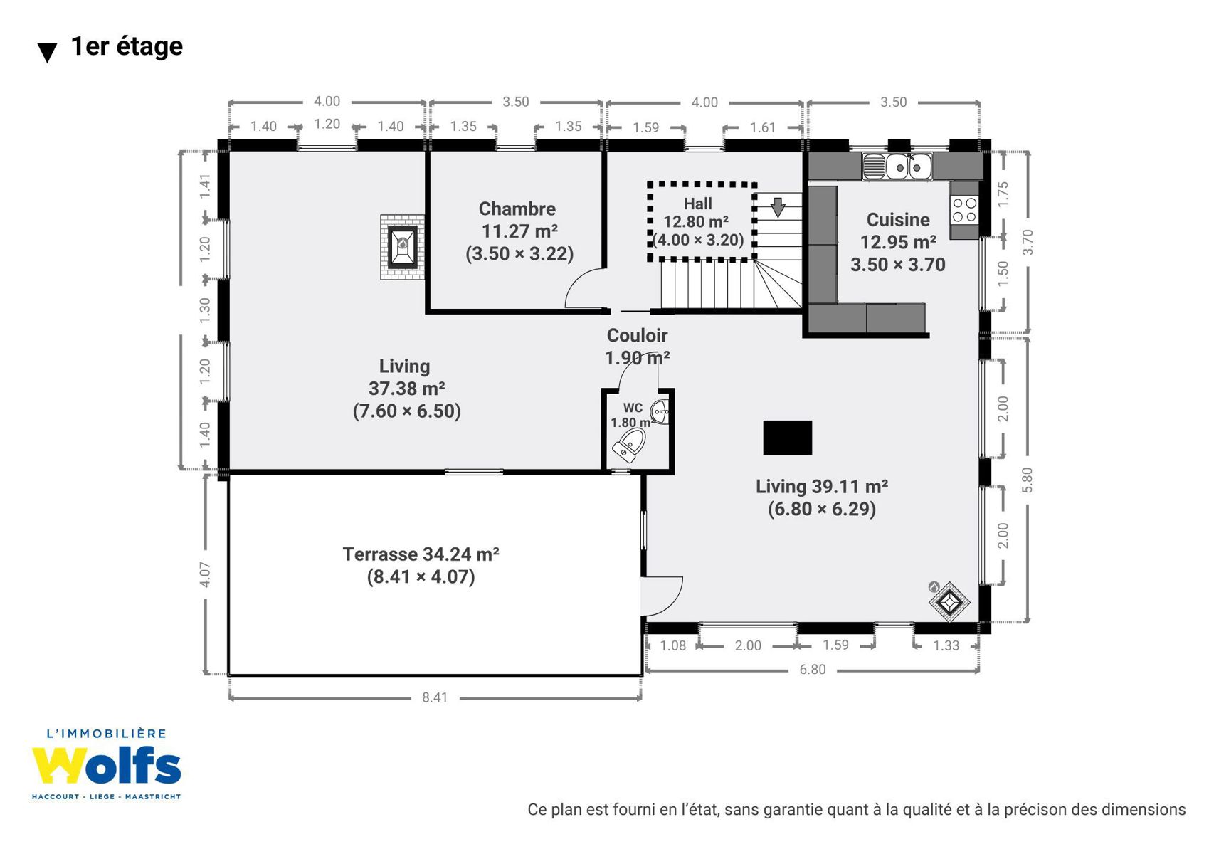
1e verdieping : hal, apart toilet, kantoor of slaapkamer van +/- 11 m², L-vormige woonkamer van +/- 37 m² met open haard en houtkachel, ingerichte keuken, tweede woonkamer van +/- 39 m² met pelletskachel, terras met zonnescherm, toegang tot de tuin.
2e verdieping : nachthal, apart toilet, drie slaapkamers van +/- 8, 11 en 24 m², doucheruimte (wastafels, douche en bidet).
Diversen : totale oppervlakte: 730 m², bewoonbare oppervlakte: +/- 221 m², K.I.: 1.351 €, dubbele beglazing in PVC uit 2005, dakbedekking in natuurleien vervangen in 2005, centrale verwarming op stookolie, elektrische accumulatieverwarming, regenwatertank, parking volledig betegeld in 2018.
Energieprestaties : EPC-nr.: 20250827008080, EPC: G, Energiescore : 580 kWh/m²/jaar, Energieverbruik : 137 182 kWh/jaar.
ONTDEK HET NU !
Meer informatie op www.wolfs.be !
-
Kamers
4 k(s).
-
Surfaces habitables
Totaal : 221 m²
slaapkamer 1 - 7.8m²
slaapkamer 2 - 11.2m²
slaapkamer 3 - 11.27m²
slaapkamer 4 - 24m²
terras 1 - 34.24m²
woonkamer - 39.11m²
eetkamer - 37.38m²
keuken - 12.95m²
-
Superficie totale
730 m²
-
Referentie
5739
-
Energie
