Huis te koop
Rue Culot du Mont 182 | Vresse-sur-Semois - 5550
475.000€
Kelder : opslagkelders.
Begane grond : mooie oprit, garage van +/- 45 m², aangename inkomhal +/- 16 m², keuken van +/- 15 m², woonkamer van +/- 35 m², kantoor van +/- 19 m², wasruimte +/- 24 m², apart toilet, terras en tuin.
1e verdieping : nachthal, vijf ruime slaapkamers van +/-12, 17 m², 19 m² en 2 x 20 m², twee complete badkamers (bad, douche, wastafel, toilet).
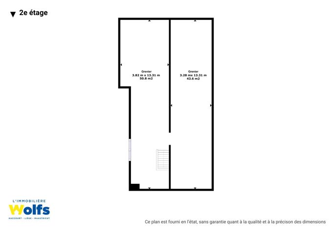
2e verdieping : ruime ruimte van +/- 95 m², met tal van inrichtingsmogelijkheden (extra slaapkamers, multifunctionele ruimte, opslagruimte, enz.).
Diversen : dubbele en enkele beglazing met houten kozijnen, centrale verwarming op stookolie, recente verwarmingsketel en dakbedekking, K.I.: 627 €, totale oppervlakte: +/- 660 m², bewoonbare oppervlakte: +/- 311 m².
Energieprestaties : EPC-nr.: 20250102000558, EPC: G, Energiescore : 1452 kWh/m²/jaar, Energieverbruik : 166 692 kWh/jaar.
MOOIE LIGGING !
-
Kamers
5 k(s).
-
Surfaces habitables
Totaal : 311 m²
slaapkamer 1 - 19.9m²
slaapkamer 2 - 16.5m²
slaapkamer 3 - 19.7m²
slaapkamer 4 - 18.5m²
slaapkamer 5 - 11.8m²
woonkamer - 35m²
keuken - 14.5m²
bureau - 19m²
-
Superficie totale
1372 m²
-
Referentie
5742Lot
-
Energie
