Huis te koop
Rue de la Province 72 | Seraing - 4100
145.000€
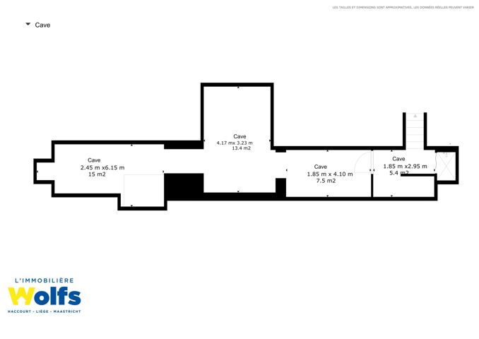
Kelder : vier kelders met de verwarmingsketel.
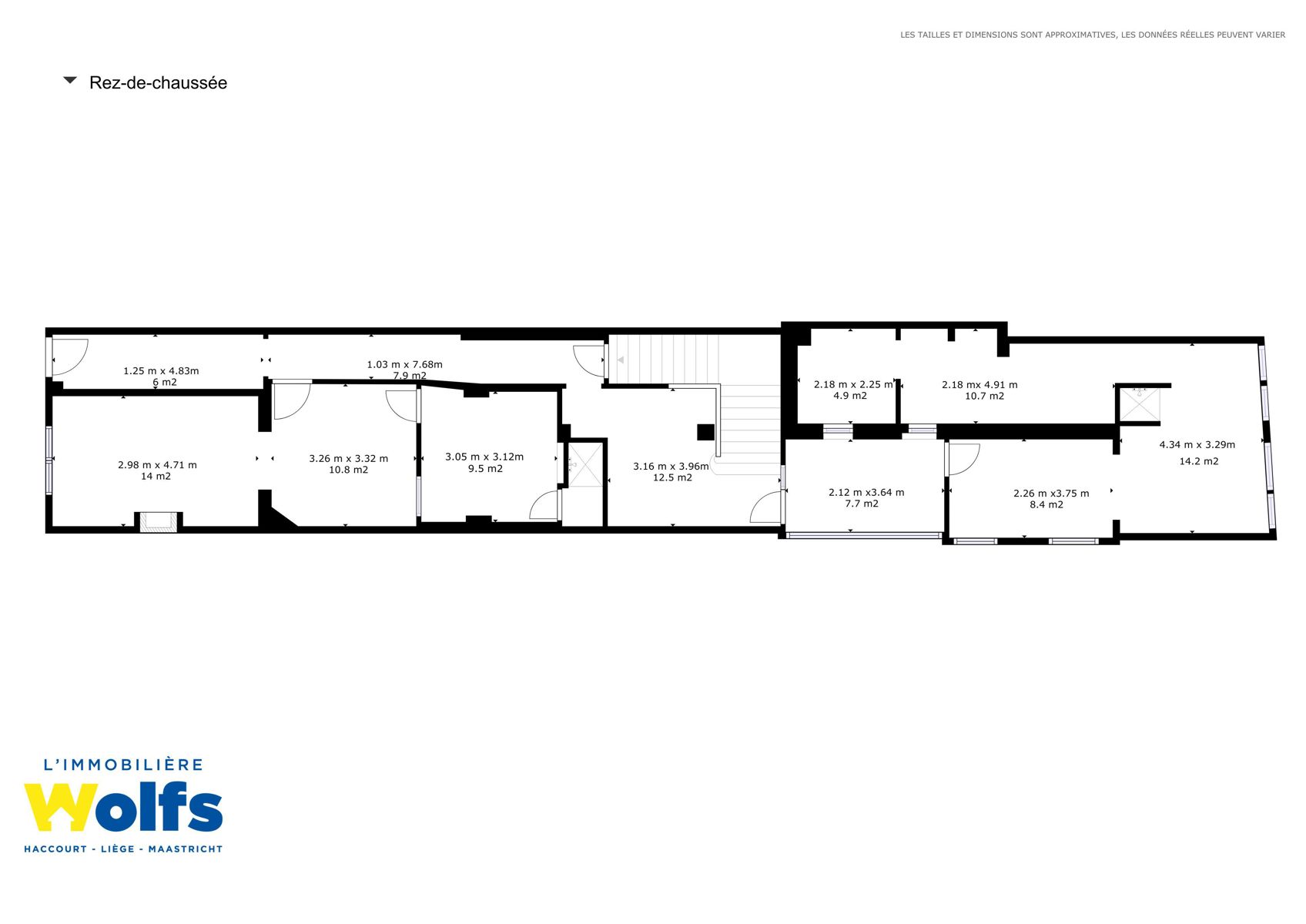
Gelijkvloers : oppervlakte van +/- 110 m² te herinrichten volgens project.
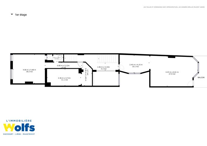
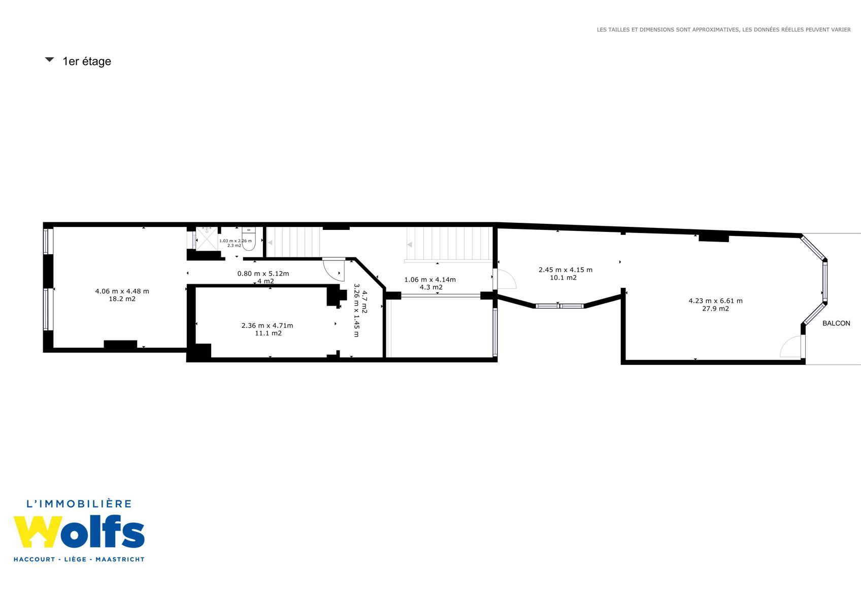
1e verdieping : oppervlakte van +/- 78 m² te herinrichten volgens project, terras aan de achterzijde.
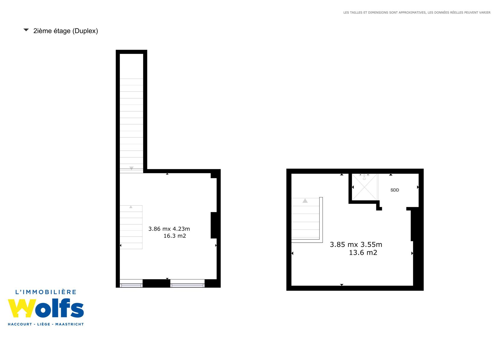
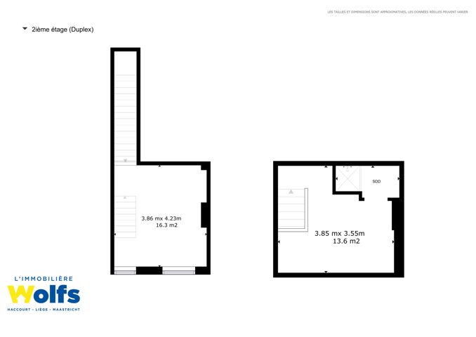
2e en 3e verdieping : oppervlakte van +/- 30 m² op twee niveaus, te herinrichten volgens project.
Diversen : totale oppervlakte: +/- 112 m², bewoonbare oppervlakte: +/- 218 m², dubbele beglazing in PVC, centrale verwarming op gas.
Energieprestaties :
EPB voor meerdere woningen, maar geen vergunning voor deze woningen.
Appartement 1: EPC-nr.: 20161221005610, EPC: G, Energiescore : 793 kWh/m²/jaar, Energieverbruik : 42 243 kWh/jaar.
Appartement 2: EPC-nr.: 20161221014586, EPC: D, Energiescore : 317 kWh/m²/jaar, Energieverbruik : 11 636 kWh/jaar.
Appartement 11: EPC-nr.: 20161221007141, EPC: G, Energiescore : 1500 kWh/m²/jaar, Energieverbruik : 68 749 kWh/jaar.
Appartement 12: EPC-nr.: 20161221010154, EPC: B, Energiescore : 131 kWh/m².jaar, Energieverbruik : 8 793 kWh/jaar
Appartement 21: EPC-nr.: 20161221011891, EPC: D, Energiescore : 330 kWh/m²/jaar, Energieverbruik : 12.160 kWh/jaar
Appartement 22: EPC-nr.: 20161221012502, EPC : D, Energiescore : 311 kWh/m²/jaar, Energieverbruik : 14.235 kWh/jaar
TALRIJKE MOGELIJKHEDEN !
MOOIE VOLUMES !
Meer informatie op www.wolfs.be !
-
Kamers
5 k(s).
-
Surfaces habitables
Totaal : 218 m²
-
Superficie totale
112 m²
-
Referentie
5775A
-
Energie
